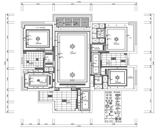
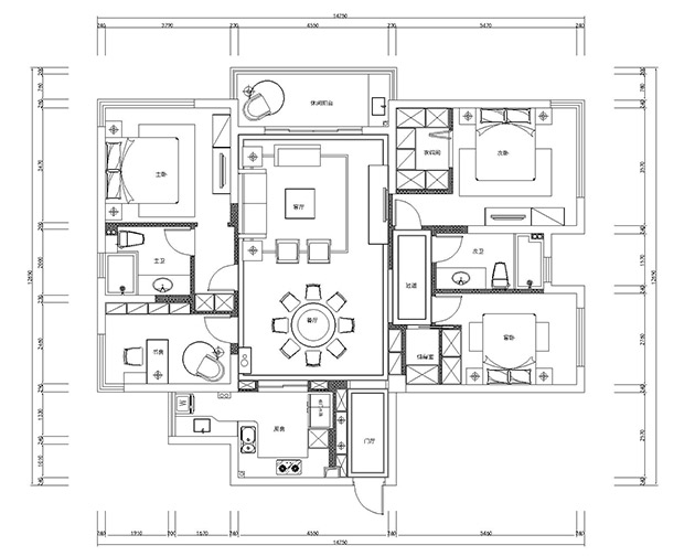
165㎡三居新古典风格锦绣东城
发布时间:
2015年01月29日
小区:锦绣东城 面积:165㎡ 户型:三居 风格:新古典风格
设计说明
新古典主义的设计风格其实是经过改良的古典主义风格。欧洲文化丰富的艺术底蕴,开放、创新的设计思想及其尊贵的姿容,一直以来颇受众人喜爱与追求。新古典风格从简单到繁杂、从整体到局部,精雕细琢,镶花刻金都给人一丝不苟的印象。
客厅




书房

新古典主义的设计风格其实是经过改良的古典主义风格。欧洲文化丰富的艺术底蕴,开放、创新的设计思想及其尊贵的姿容,一直以来颇受众人喜爱与追求。新古典风格从简单到繁杂、从整体到局部,精雕细琢,镶花刻金都给人一丝不苟的印象。




