180㎡四居新古典风格金地长青湾
发布时间:
2015年04月18日
小区:金地长青湾 面积:180㎡ 户型:四居 风格:新古典风格
设计说明
用平静的心灵看世界,眼中才会有真山水。本案意在还原一种恬淡祥和的悠然心境,让居者在节奏紧迫的都是生活中以平常心享受难得的闲暇时光。
舒张中有含蓄,时尚中带妩媚,这正是本案的魅力所在。浓郁的东南亚风格,融融暖意迎面袭来,这不仅是视觉上的锦绣多彩,更是生活的曼妙体
验。在这个寒冷的冬季,让人忍不住放纵在这温柔乡里肆意沉溺。
家居设计实质上是对生活的设计,东南亚式的设计风格之所以如此流行,皆因其崇尚自然、原汁原味,注重手工工艺而拒绝同质的精神,颇为符合
时下人们追求健康环保、人性化以及个性化的价值理念,从而迅速升华为一种时尚、积极的生活态度。
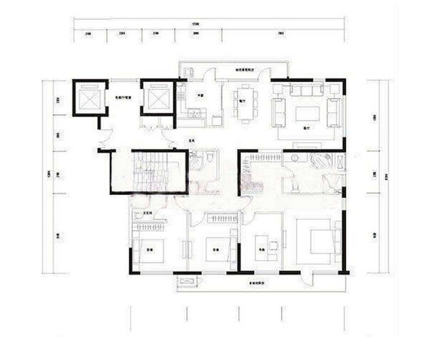
户型图

客厅





书房

卧室


餐厅


玄关





京公安网备11010502040911