260㎡别墅新古典风格龙湖悠山郡
发布时间:
2015年04月19日
小区:龙湖悠山郡 面积:260㎡ 户型:别墅 风格:新古典风格
设计说明
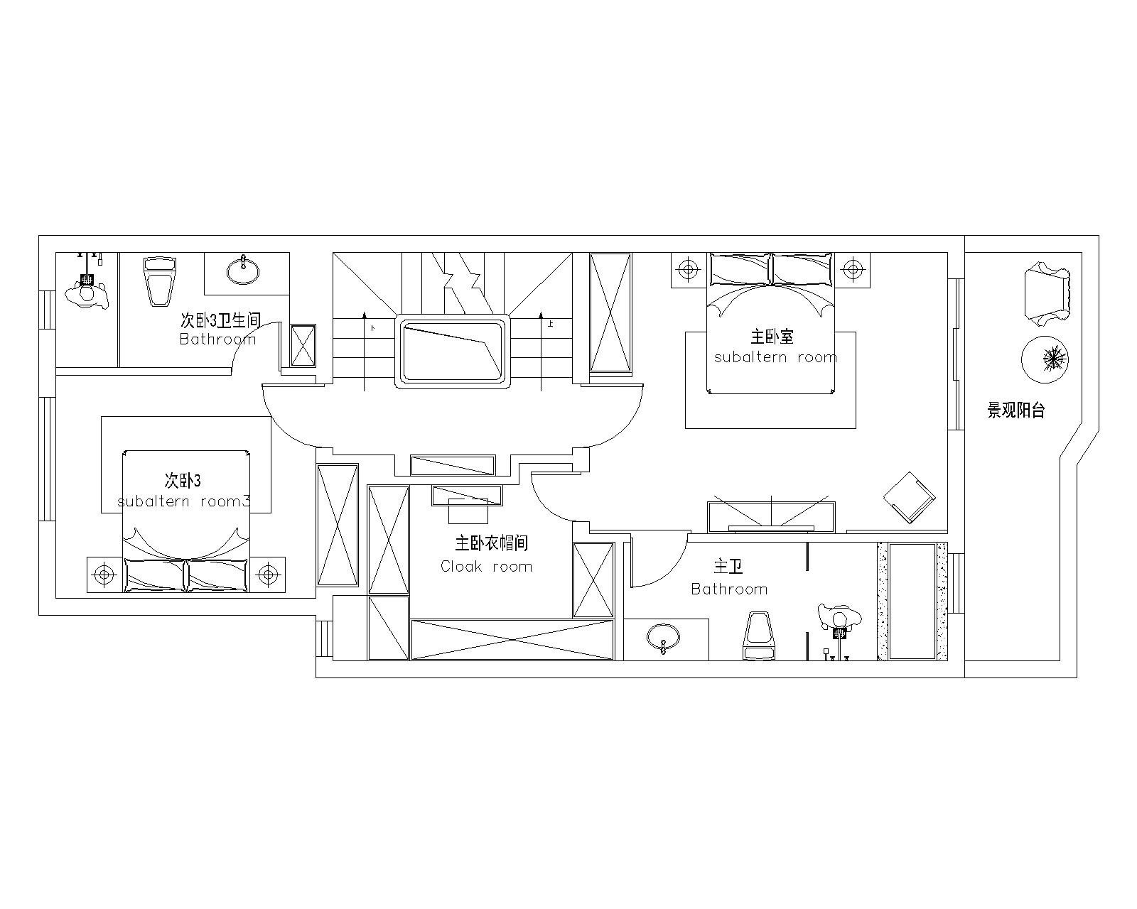
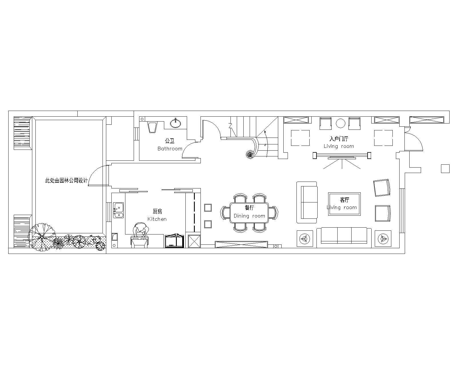
客厅在材料选择上多倾向于米白色石材,以体现空间的温馨大气,餐厅的挑空使空间的层次更加分明,可以有效地建立起一种温情暖意的家庭氛围,家居自由随意、简洁怀旧、实用舒适。卧室以棕色的木质线条和米黄色的墙纸为主,使自然色彩与家具完美结合。家具的色泽和质感既与空间完美搭配,又独具一格。
客厅






卧室





京公安网备11010502040911