98㎡二居新中式风格金辉悦府
发布时间:
2015年05月13日
小区:金辉悦府 面积:98㎡ 户型:二居 风格:新中式风格
设计说明
现代中式风格是为传统中式家居风格的现代生活理念,通过提取传统家居的精华元素和生活符号进程合理的搭配、布局,在整体的家居设计中既有中式家居的传统韵味又更多的符合了现代人居住的生活特点,让传统与现代完美结合,传统与时尚并存。让传统艺术的脉络传承下去的具有中国特色的中国风格。将传统的元素赋予现代的设计中,让人既体会到现代设计的科技性,又体会到传统的中国韵味。
在温柔的灯饰烘托下,透出中华文明博大精深的茶韵,再添一抹淡淡的花香,便造就了令人心旷神怡的古茶境。
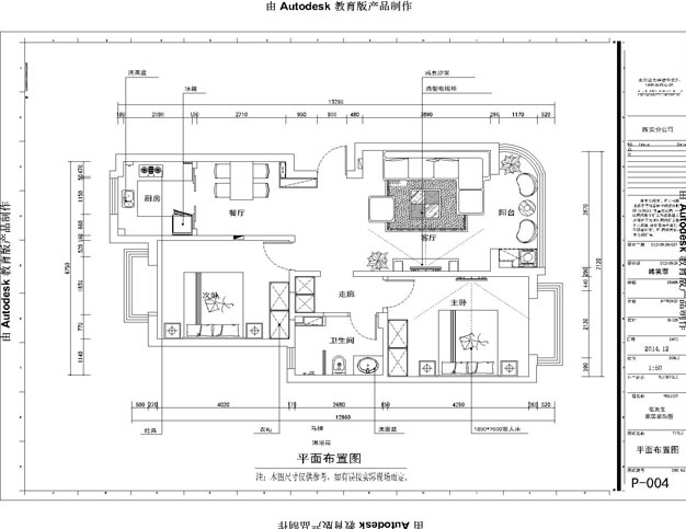
客厅






餐厅





京公安网备11010502040911