105㎡二居其他天朗大兴郡
发布时间:
2015年05月29日
小区:天朗大兴郡 面积:105㎡ 户型:二居 风格:其他
设计说明
计说明:
单身女客户努力奋斗完成自己的蓝色美梦。客厅地面弧形地砖铺贴,局部用马赛克做点缀,顶面流畅的弧形跌级吊顶与地面相呼应,让空间更加灵动。卧室及衣帽间都采用灰色作为基调,蓝色点亮整个空间。
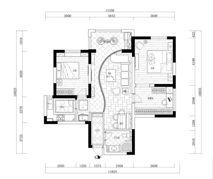
户型图

客厅


衣帽间

餐厅

卧室

计说明:
单身女客户努力奋斗完成自己的蓝色美梦。客厅地面弧形地砖铺贴,局部用马赛克做点缀,顶面流畅的弧形跌级吊顶与地面相呼应,让空间更加灵动。卧室及衣帽间都采用灰色作为基调,蓝色点亮整个空间。





