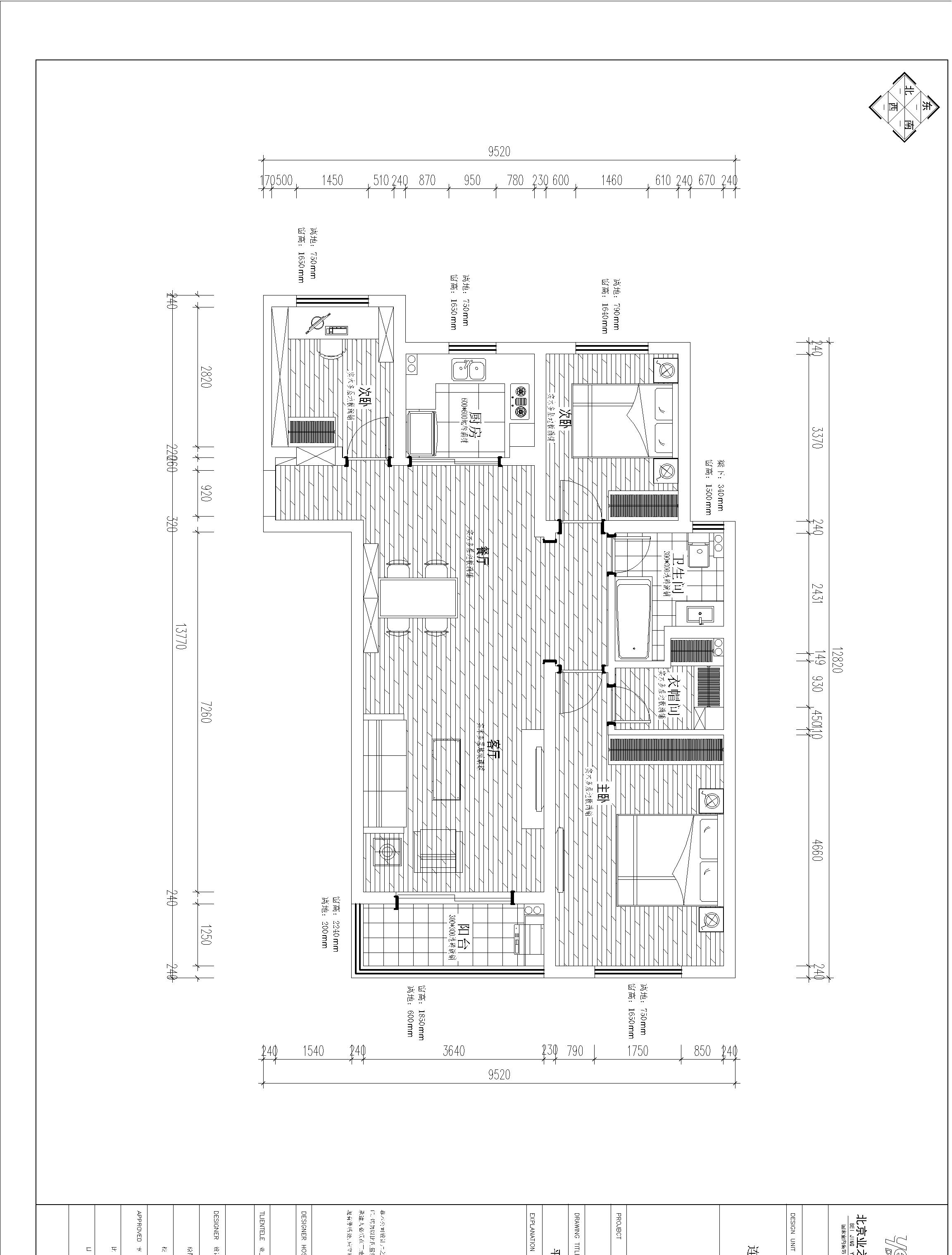
128㎡三居新中式风格同科汇丰国际
发布时间:
2015年05月29日
小区:同科汇丰国际 面积:128㎡ 户型:三居 风格:新中式风格
设计说明
新中式风格诞生于中国传统文化复兴的新时期,伴随着国力增强,民族意识逐渐复苏,人们开始从纷乱的“摹仿”和“拷贝”中整理出头绪。在探寻中国设计界的本土意识之初,逐渐成熟的新一代设计队伍和消费市场孕育出含蓄秀美的新中式风格。在中国文化风靡全球的现今时代,中式元素与现代材质的巧妙兼柔,明清家具、窗棂、布艺床品相互辉映,再现了移步变景的精妙小品。
客厅









京公安网备11010502040911