220㎡三居新古典风格国赫红珊湾
发布时间:
2015年06月03日
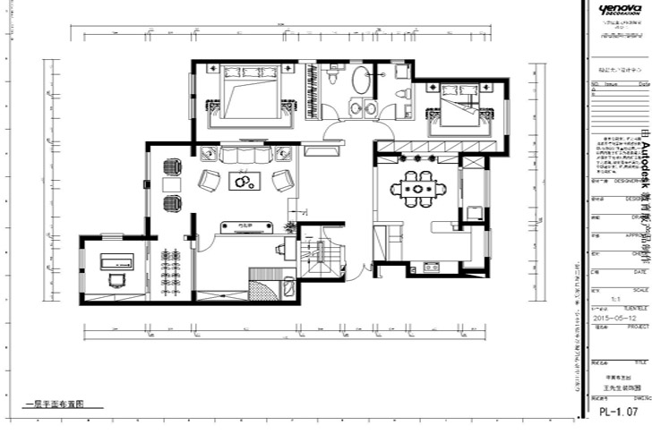
小区:国赫红珊湾 面积:220㎡ 户型:三居 风格:新古典风格
设计说明
设计说明:此客户为年轻小夫妻,在家庭的文化背景下对古典美特别中意,喜欢天圆地方的元素。此户型特点入户门过道太深,本案采用了断开方式增加门厅的感觉把区间合理分割。餐厅与厨房连贯性不好,运用可拆除墙体把餐厅厨房连体性。家庭阳台浪费空间太多,也进行了封闭阳台处理,达到多区域实用性。本案比较棘手在于过厅横梁位置太偏导致空间感不舒适,通过圆形的衔接也把梁体弱化了。欧式古典是介于唯美与传统的一种结合体,主要体现为木质品的结合与流线型的造型元素完美结合塑造!
客厅













京公安网备11010502040911