145㎡三居新古典风格湖滨文锦苑
                  发布时间:
                  2015年08月14日
                
 小区:湖滨文锦苑 面积:145㎡ 户型:三居 风格:新古典风格
设计说明
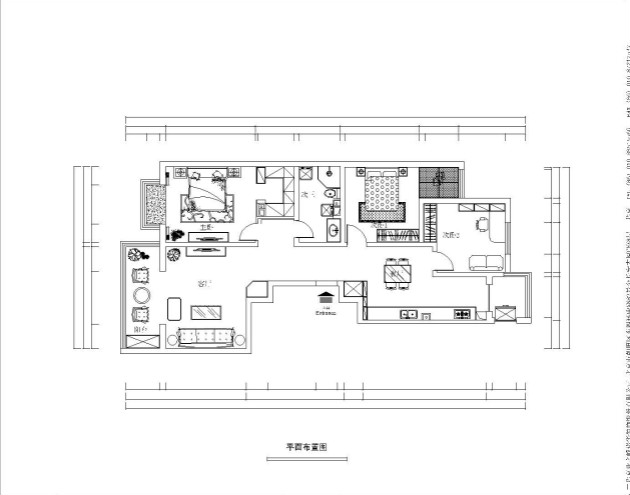
 本方案为三室两厅结构,厨房餐厅空间略小,改变原格局,做成敞开式厨房,空间利用率高,并采光效果更好。风格为古典欧式,沉稳雅致。
客厅
 



卧室
 
餐厅
 

本方案为三室两厅结构,厨房餐厅空间略小,改变原格局,做成敞开式厨房,空间利用率高,并采光效果更好。风格为古典欧式,沉稳雅致。






