312㎡四居现代简约风格阳光汾河湾
发布时间:
2015年08月14日
小区:阳光汾河湾 面积:312㎡ 户型:四居 风格:现代简约风格
设计说明
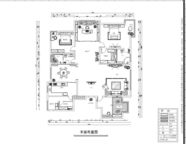
这是一套总体面积310平的住宅设计,整体风格为现代风格,以石材,灰镜,黑檀,软包,打造对比强烈的时尚之风。原空间重新划分,增大厨房面积,增加独立书房,卫生间化零为整,功能明确。
餐厅

客厅







这是一套总体面积310平的住宅设计,整体风格为现代风格,以石材,灰镜,黑檀,软包,打造对比强烈的时尚之风。原空间重新划分,增大厨房面积,增加独立书房,卫生间化零为整,功能明确。







