240㎡五居新中式风格香溢花城
发布时间:
2015年09月08日
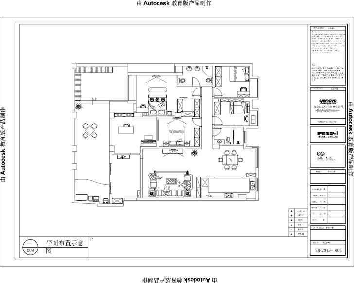
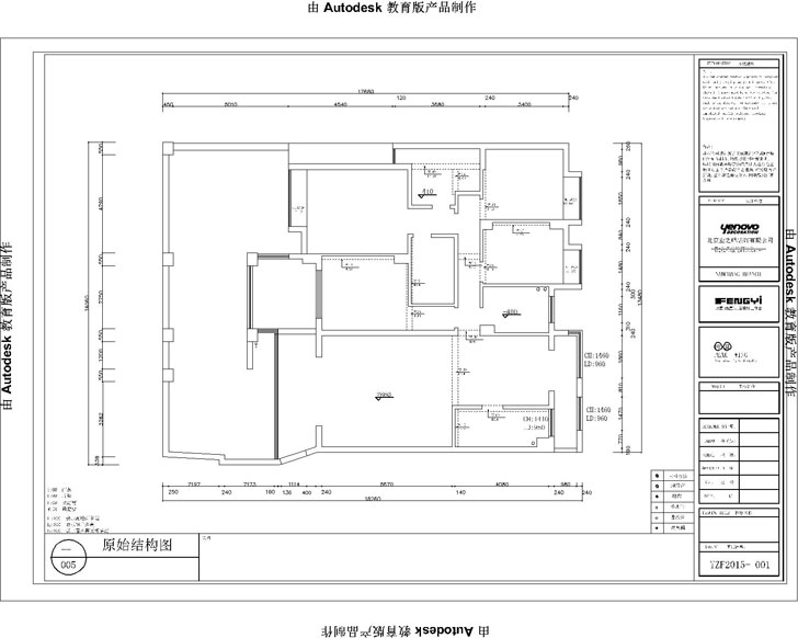
小区:香溢花城 面积:240㎡ 户型:五居 风格:新中式风格
设计说明
此案例业主是一个夫妇有小孩为一儿一女,父母经常来住,但想在要个书房,对于四房的户型来说是不够的,格局上采用把生活阳台改为书房。这样满足了客户的需求,风格业主采用的是中式风格,格局上业主不希望太花,喜欢红色的家具。后期空间上采用红色的家具,露天阳台才用阳光房的设计把空间隔为洗衣阳台和休闲阳台来处理。
客厅



卧室


餐厅





京公安网备11010502040911