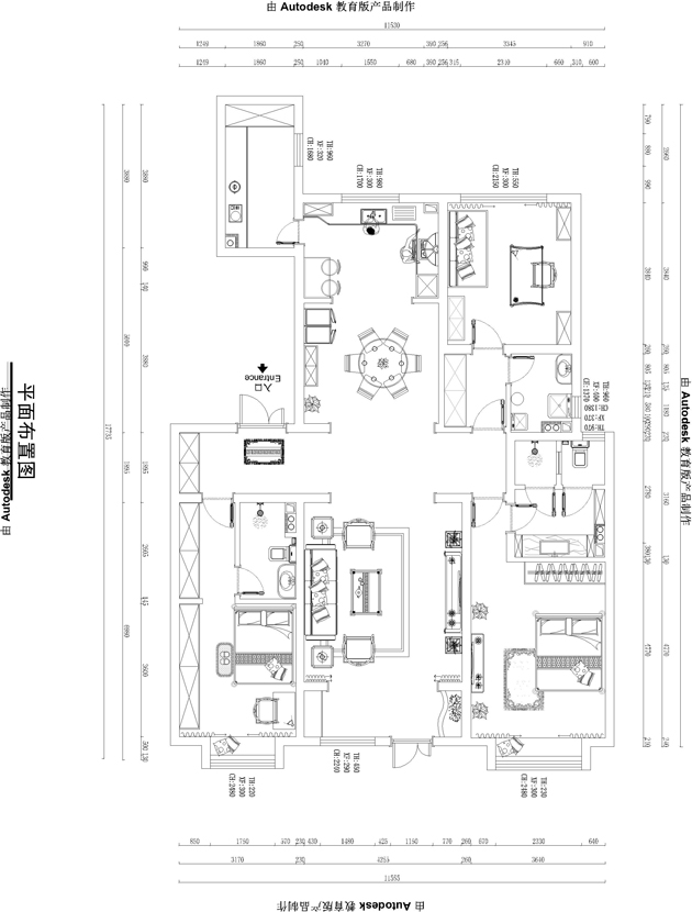
265.2㎡三居混搭风格东胜紫御府
发布时间:
2015年09月11日
小区:东胜紫御府 面积:265.2㎡ 户型:三居 风格:混搭风格
设计说明
设计说明摘要: 此设计方案的风格倾向定位为中美混搭风格,中式与美式相结合碰撞,更多的区别在颜色与硬装上,此方案的整体布局以走廊为中心,将狭长的走廊做独特的中式围合。还有电视墙上护墙板的造型设计感十足,中式气息浓烈,但是与之呼应的沙发背景墙上突出的留白石膏板恰到好处的体现出西方美。加上整体软装上的搭配使得整个空间看起来很和谐,使各个空间得到巧妙的衔接与统一。
客厅







餐厅





京公安网备11010502040911