360㎡别墅美式风格龙湖滟澜山
发布时间:
2015年09月12日
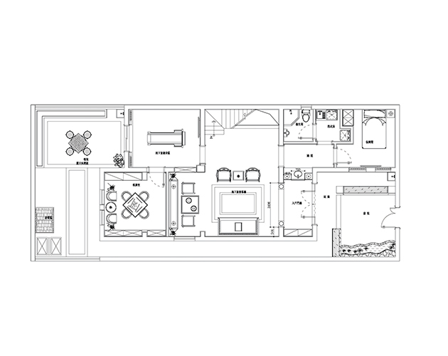
小区:龙湖滟澜山 面积:360㎡ 户型:别墅 风格:美式风格
设计说明
本案例设计中,设计师本着以人为本的设计原则结合业主的自身需求对不同的空间做了不同的处理手法。该业主在和设计师沟通时表面对中式老家具有着独特的喜爱,同时也渴望拥有美式风格的轻松、自在,所以在设计中负一层为传统的中式风格,而其他楼层的装饰都以美式风格为主。同时通过色调的统一性使不同的风格之间有着完美的融合与统一。
客厅











餐厅





京公安网备11010502040911