70㎡一居现代简约风格华强城
发布时间:
2015年09月12日
小区:华强城 面积:70㎡ 户型:一居 风格:现代简约风格
设计说明
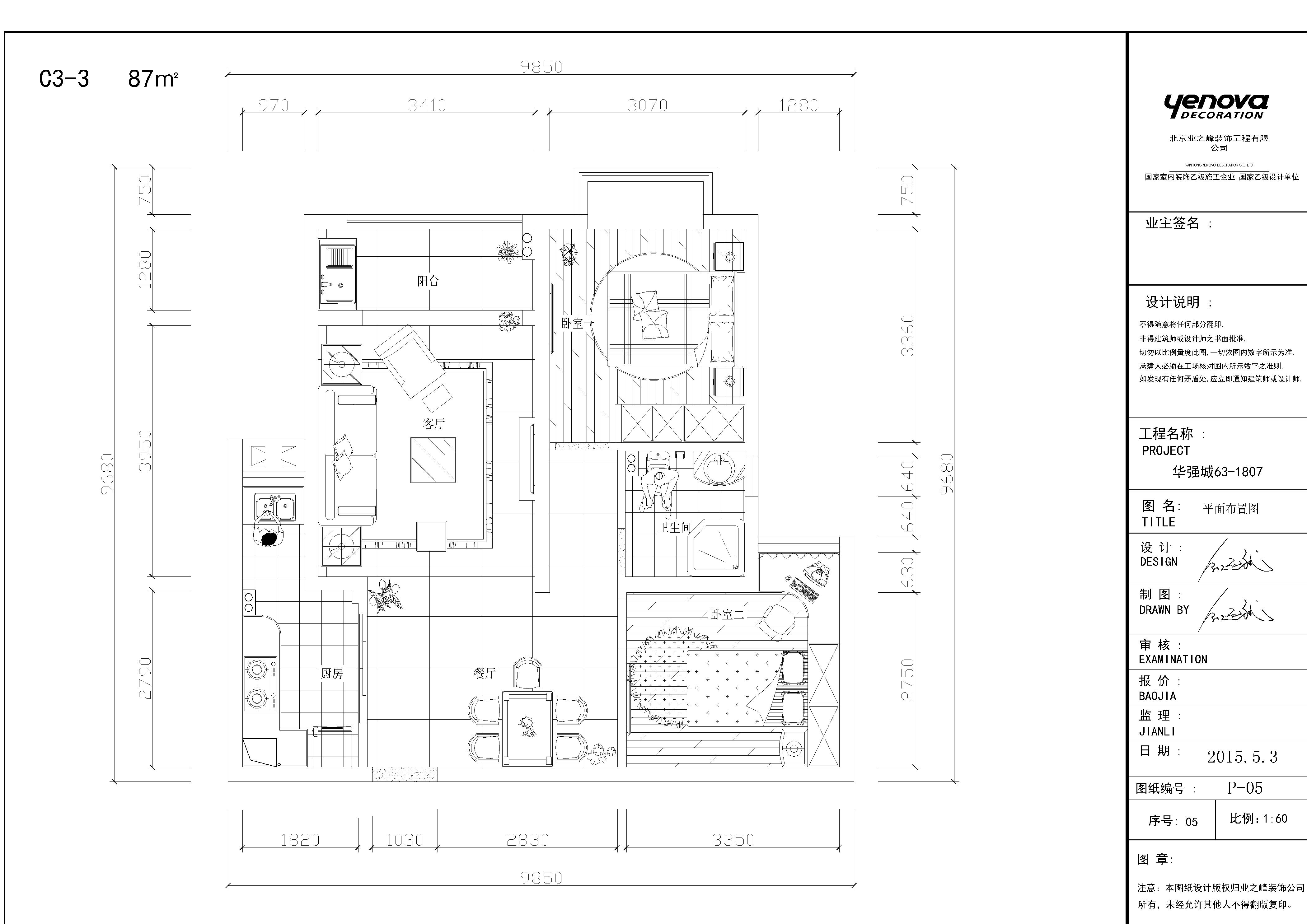
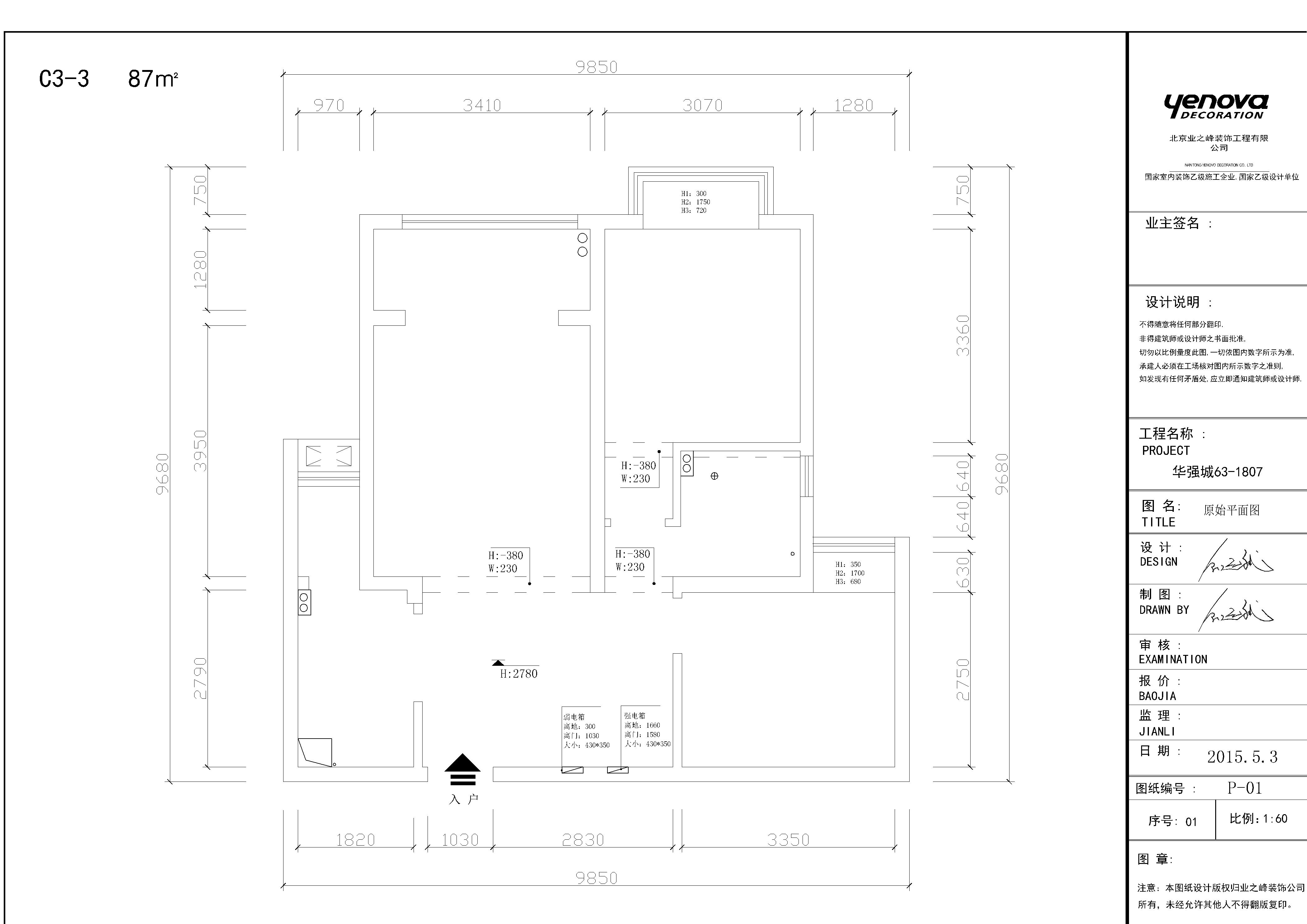
设计说明:房子整体结构中规中矩,空间比较紧凑,在整个空间设计过程中没有大面积的敲墙,砌墙。保持了原有的结构。因为此房客户用来出租,考虑成本。只是在原来基础上加以修饰。设计主体风格还是以现代简约为主。
客厅



餐厅

设计说明:房子整体结构中规中矩,空间比较紧凑,在整个空间设计过程中没有大面积的敲墙,砌墙。保持了原有的结构。因为此房客户用来出租,考虑成本。只是在原来基础上加以修饰。设计主体风格还是以现代简约为主。



