130㎡三居美式风格全兴花园
发布时间:
2015年09月26日
小区:全兴花园 面积:130㎡ 户型:三居 风格:美式风格
设计说明
设计说明:本方案沿袭美式风格的主元素,融入了现代的生活元素。此设计方案居室有的不只是豪华大气,更多的是惬意和浪漫。通过完美的典线,精益求精的细节处理,带给家人不尽的舒服触感,实际上和谐是新美式主义的最高境界。
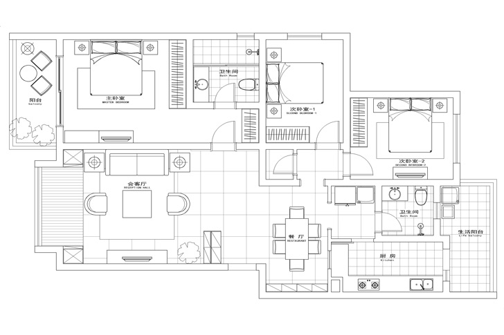
户型图

客厅



餐厅

设计说明:本方案沿袭美式风格的主元素,融入了现代的生活元素。此设计方案居室有的不只是豪华大气,更多的是惬意和浪漫。通过完美的典线,精益求精的细节处理,带给家人不尽的舒服触感,实际上和谐是新美式主义的最高境界。




