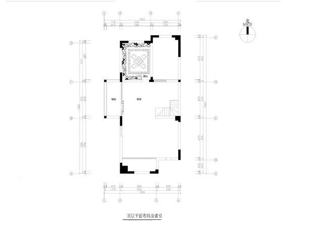
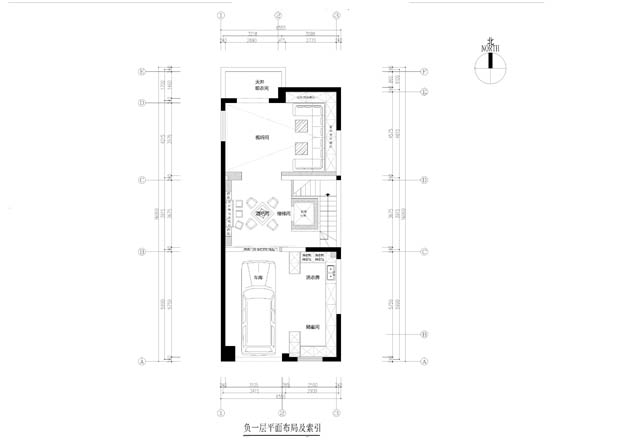
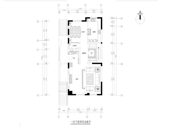
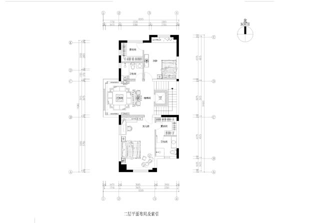
348㎡别墅新中式风格万科仕林苑
发布时间:
2015年09月30日
小区:万科仕林苑 面积:348㎡ 户型:别墅 风格:新中式风格
设计说明
本案的设计基准就是“以人的感觉为第一使命” 本案的设计以功能至上为理念,以规划空间为目标,个性家居的典雅、品味、 简约中式为主题,为主人打造宜居宜景的居住环境,和低碳环保的居住方式。 本案的设计小规格的重建空间,只是让空间保持各自的独立形态,再通过 多种不同类型元素中的层叠和自然形成立体效果,强化整体设计氛围的景深效 果。主人希望此宅简单而不失品味,适宜休闲和养老的居住,设计中鉴于定制 与统一色质的融合,所以在立面的设计手法上运用景深和不同材质元素,让整 个的室内环境效果拥有了韵律并升华,再通过运用曲线和折线等不同的空间变 化形式,变得简练而丰富。最后就是独立空间的合理性,善于利用空间尺寸、 比例分割、变化形式、层次关系等,让整体室内设计更加流畅,主题更加明确 ,思路更加细腻,最终打造此宅。
客厅

















书房


玄关

餐厅





京公安网备11010502040911