76㎡一居现代简约风格合景领峰
发布时间:
2015年11月06日
小区:合景领峰 面积:76㎡ 户型:一居 风格:现代简约风格
设计说明
此案是为一名单身男士。年龄在35岁的白领。比较前卫时尚,喜欢不拘一格。在注重功能的同时也完全体现了简约风格的特点。
男业主喜欢简洁大气,简单但又不失端庄雅致。在整个设计沟通过程中,最终将此设计定为简约风格。
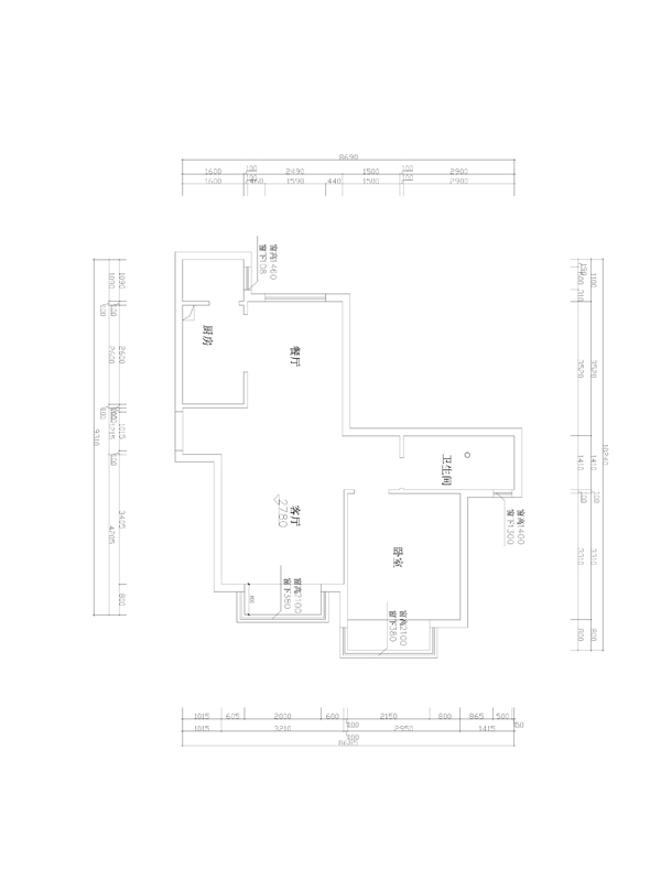
本户型为一室两厅户型,地处一层外面有外置花园。入户左手是厨房,右手是客厅,外面是花园。在沟通的过程中,客户需要一个在家办公的区域。因为不经常做饭,不需要独立的就餐区域,所以采用开放式厨房。把原有的厨房墙体拆除。入户门的左侧墙体重新加砌一米二的矮墙来分割厨房和门厅。这样门厅处也有了鞋柜储物空间。把原有的餐厅区域改成了在家的办公空间。正对入户门的墙体位置做成了储物柜和书桌一体,看上去更加的完整。厨房橱柜和吧台的结合,加上简洁的办公区,结合在了一起。既突出了一个单身男士的生活品质,又能完全体现出他对工作的态度认真。客厅朝西外面有花园。面积不大但采光非常好。在整个色调中以简洁的灰色为主,电视墙上采用了隔板来装饰。客厅采用浅色地砖和客厅里面的浅米色沙发 以及及其简单的灯饰为搭配。在主卧采用灰色墙面和皮质的床相互的衬托。地面的地板窗帘的颜色古典灯具的搭配。
整个设计的亮点是在设计手法上,既突出了现代简约的大气,又体现出单身男士的生活品质。
客厅




卧室

餐厅





京公安网备11010502040911