160㎡三居新中式风格海德公园
发布时间:
2015年11月08日
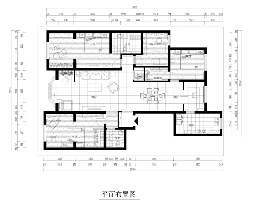
小区:海德公园 面积:160㎡ 户型:三居 风格:新中式风格
设计说明
此案是160平方左右的户型,在了解到客户要求的情况下,主要是以新中式的风格来体现室内的稳重,同时又加入现代元素,将现代和传统元素结合在一起。从当代人的审美角度出发,运用简约的手法,为业主打造一处经典、气派的大居所,体现出主人优雅舒适的生活态度。
本案客厅格局的改造重点在阳台,改造后的阳台景观跟客厅完全融入一整体,木制屏风的运用既不遮挡采光同时又让客厅与阳台的一侧有明显的区分,又相呼应顶部的木质吊顶。餐厅墙面使用护墙板中间留白,有点园林景观的意境,同时其他墙面均采用素色的壁纸营造居室的舒适感。餐厅后区根据客户的要求设计吧台与上网区,方便在使用厨房的同时查阅烹饪资料。
此案总体布局很合理,设计有不同的储藏空间,在原有的基础上加以区分和改造充分发挥他的功能。
在后期的装饰中,采用大量的木做饰面,白墙上挂以中式风格为主的装饰画,在用比较现代的小饰品做装饰,让现代与传统完美结合,给业主创造一个温馨,优雅的家庭环境。
客厅





餐厅





京公安网备11010502040911