120㎡三居新中式风格学清苑
发布时间:
2015年11月08日
小区:学清苑 面积:120㎡ 户型:三居 风格:新中式风格
设计说明
此设计为一家三口设计的,业主中年夫妇,男女业主都是教育战线的工作者,北大和清华的高级教授,性格稳重有自己独特的见解,偏爱传统文化并有旅外经历受西方文化一定的影响,能接受现代的科技元素,经过几次的接触本案定位为现代中式装修。
本案设计主要风格定位现代中式,本方案并不希望过分的运用中式的传统元素,通过一些简洁的手法达到现代中式的韵味,比如背景墙本造型处理。
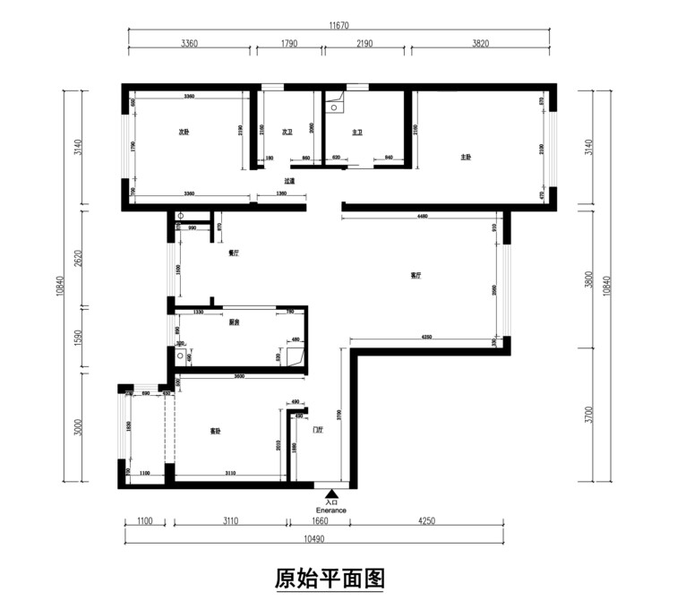
本居室平时只有男女业主两人在孩子在国外留学,在家待得时间非常有限,双卫的结构设计相对有些浪费同时储物空间欠缺的特点,从功能的使用最大化上考虑把其中的一个卫生间放弃改为更衣间,增大储物功能满足需求。
门厅原结构预留了鞋帽柜的空间,下方留有地暖的分水器用衣柜把其包裹起来达到美观实用的效果,设计过程中在门厅特设置玄关以做到区域的划分,考虑到进门处的使用频率和磨损选用了瓷砖作为玄关的地面材质,客厅及餐厅还是选择了天格的实木地板,档次和舒适性得到了极大的提高。原有的餐厅阳台用处不是很大同时放弃了一个卫生间至使洗衣机不能放置在卫生间,把阳台的隔断做了一定的改造洗衣机及配套的储藏空间能很好的得以解决,也能满足餐厅过于窄小不能放置餐边柜这一配套设施的需求,提高生活品质。
客厅





卧室





京公安网备11010502040911