105㎡二居其他蓝光云鼎
发布时间:
2015年11月08日
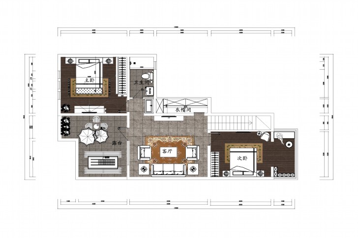
小区:蓝光云鼎 面积:105㎡ 户型:二居 风格:其他
设计说明
设计师在符合客户要求的基础上融入自己的创新做出了以下设计:
1.在入户门厅及客厅的地面采用一体的石材铺贴,使得整个空间整体和谐统一,为了满足其功能需求,将入户门对面的空闲空间加设墙体,增加一组衣柜鞋柜一体的柜子,便于主人进出更换衣物。
2.客厅是一个公共空间,进门后可以直接看到的区域,而且用于接待客人,很能体现主人的生活品味,因此要多花心思进行装扮。这里从电视背景墙到顶部造型设计,再到家具、灯具及细小的物件都运用较为简单的配饰,此外再加上一些玻璃装饰框,形成简约的客厅效果,烘托出一种淡雅的气氛。
3.用餐是人生活很重要的一部分,所以餐厅的设计也至关重要。餐厅位置与客厅一体,考虑到用餐油迹之类的,所以餐厅选择铺设地砖并在吊顶上和其他空间做了区分,将餐厅空间独立开来,很好的展现了主人的生活品味,营造出一个可以带给主人愉快的就餐环境。
整体风格注重奢华典雅设计。奢华典雅不单单只是消费的节俭,更是一种生活品味、一种健康时尚、一种合理节约的生活品位。
本案给人奢华、典雅的舒适感,客厅与餐厅相连,将整个空间无限放大,整个空间简洁明亮,墙体以壁纸为主、与明亮的灯光融为一体化,在视觉上给人舒适的体验。大方设计作为家具配饰,充分彰显现代简约风格。
奢华典雅的设计风格让业主的
客厅








餐厅





京公安网备11010502040911