200㎡平层其他石坊院
发布时间:
2015年11月10日
小区:石坊院 面积:200㎡ 户型:平层 风格:其他
设计说明
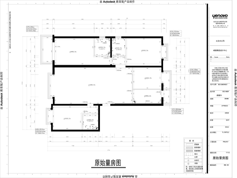
本户型为平层,三室两厅。业主为夫妻二人,这件房子作为婚房使用,准备打算要孩子,家中父母偶尔会过来小住。进过与业主的沟通及了解将此方案的风格定义为欧式风格,在根据业主的生活使用需求进行合理的布局。
此方案的主要改动在门厅、客厅、餐厅这一公共活动区,原有布局的话首先从入户门进来没有玄关,餐厅位置也不居中,再经过合理的分析布局后在室内增加玄关,入户门一进来首先是一整排的衣帽柜,即美观整洁又满足了日常生活的使用需求。在玄关背后分割出独立的餐厅,摆放整体的酒柜及欧式的壁炉。主卧的空间很大,在为了不浪费空间的情况下,将卧室分割出一个单独的衣帽间,已满足业主夫妻二人的生活储物需求。
在材质的应用上,公共区域选择的米黄色防玉石微晶石,局部配以欧式风格的拼花,彰显室内空间的大气。在卧室的地面上采用了红樱桃色的实木复合地板,墙面大面积使用欧式的大马士革图案的壁纸来装点空间。已营造出一个华丽而又温馨的家
客厅




卧室

餐厅





京公安网备11010502040911