83㎡二居新古典风格青山湖东园
发布时间:
2016年03月05日
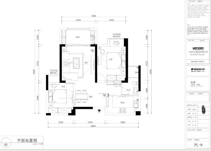
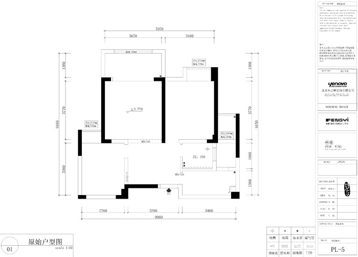
小区:青山湖东园 面积:83㎡ 户型:二居 风格:新古典风格
设计说明
此住宅位于青山湖旁中大青山湖东园;业主夫妻养老的房子,偏爱稳重简单实用,风格倾向定位为现代中式风格,本案的设计重点是对空间的合理利用为主,让空间达到最大化价值,扩大了厨房和公卫的使用功能,从设计手法上采用了从墙面上的线与面的衔接呼应,以及顶面的空间的虚拟划分,达到各功能空间融会贯通的目的。简洁复古的中式感在本案中得到了淋漓尽致的体现。
客厅










京公安网备11010502040911