113㎡三居新中式风格棕榈庄园
发布时间:
2016年03月05日
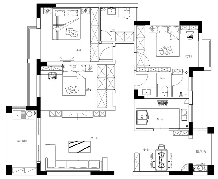
小区:棕榈庄园 面积:113㎡ 户型:三居 风格:新中式风格
设计说明
本套户型为三居室,注重实用和效果在风格定义上定义中式风格,做到细致认真温馨的中式感觉,客厅使用大理石边框实木花格背景,卧室的墙纸找到公共空间大气奢华和生活空间的唯美舒适,没有过于繁琐的造型,注重细节使用实木,墙纸等装饰材料。
客厅



卫生间

厨房

卧室





京公安网备11010502040911