90㎡二居美式风格海尔鼎世华府
发布时间:
2016年03月24日
小区:海尔鼎世华府 面积:90㎡ 户型:二居 风格:美式风格
设计说明
整个手法采用直线条交叉曲线,表现舒缓、连惯的感觉。餐厅设计为多功能区之后,整个过道立马显得生动而明亮,从色彩到家具、到门饰、到摆件、都能见到异域风韵。从材料、灯具、电器挂画等,也能体味到美式时尚和蔼的气息
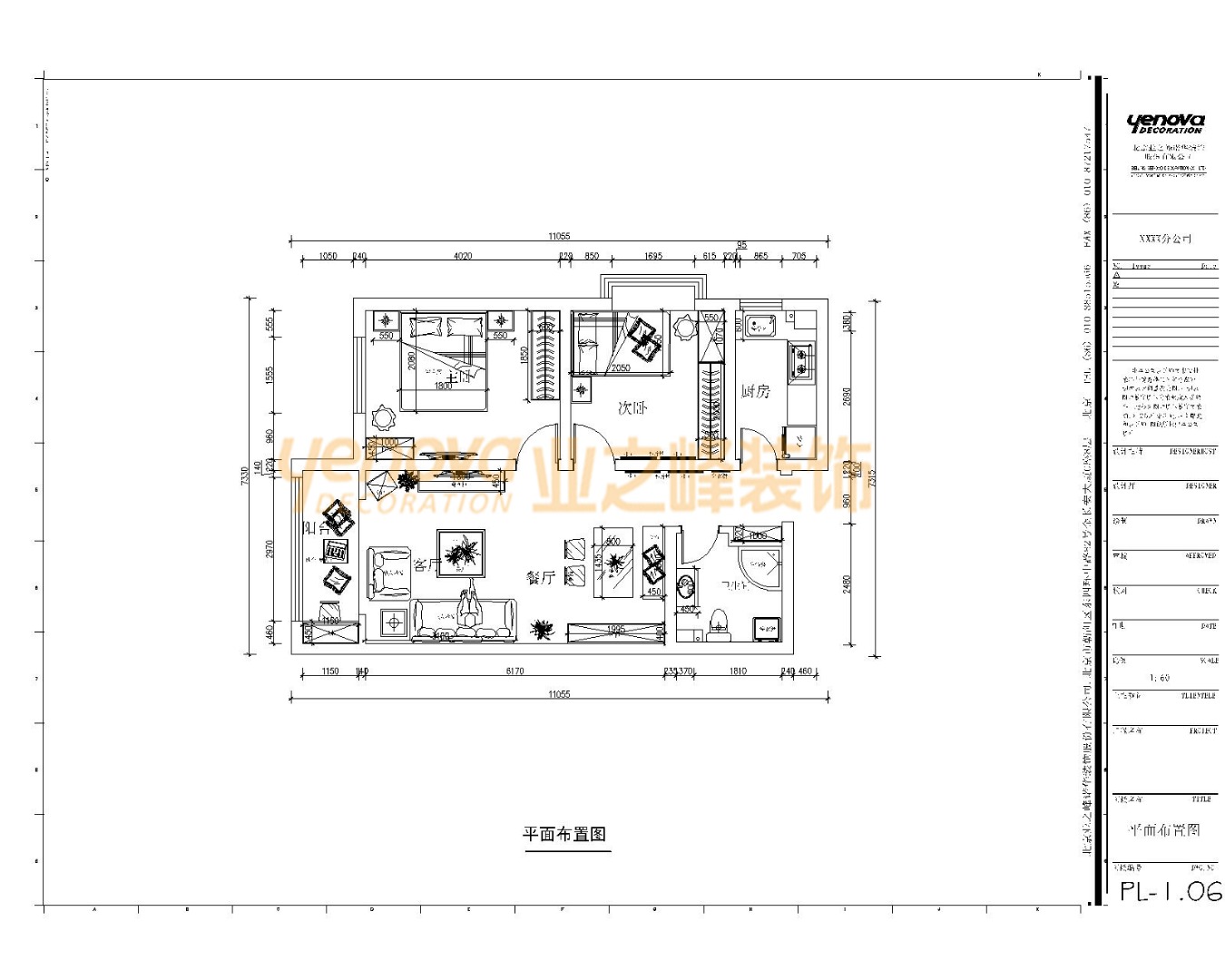
户型图

卧室

餐厅

客厅


整个手法采用直线条交叉曲线,表现舒缓、连惯的感觉。餐厅设计为多功能区之后,整个过道立马显得生动而明亮,从色彩到家具、到门饰、到摆件、都能见到异域风韵。从材料、灯具、电器挂画等,也能体味到美式时尚和蔼的气息




