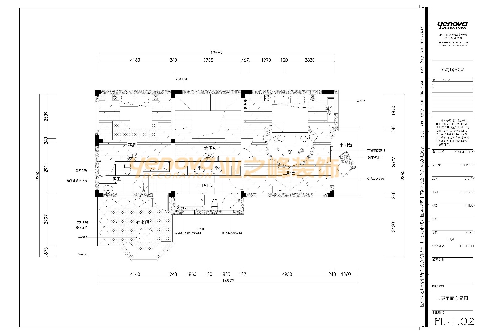
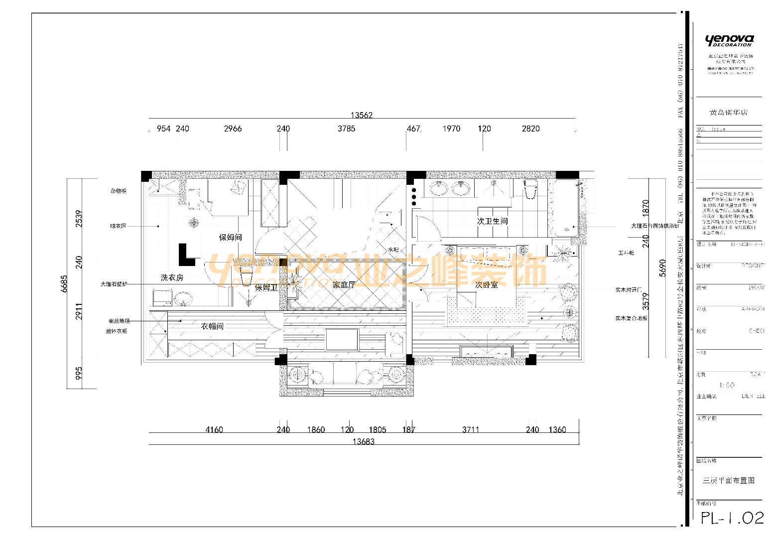
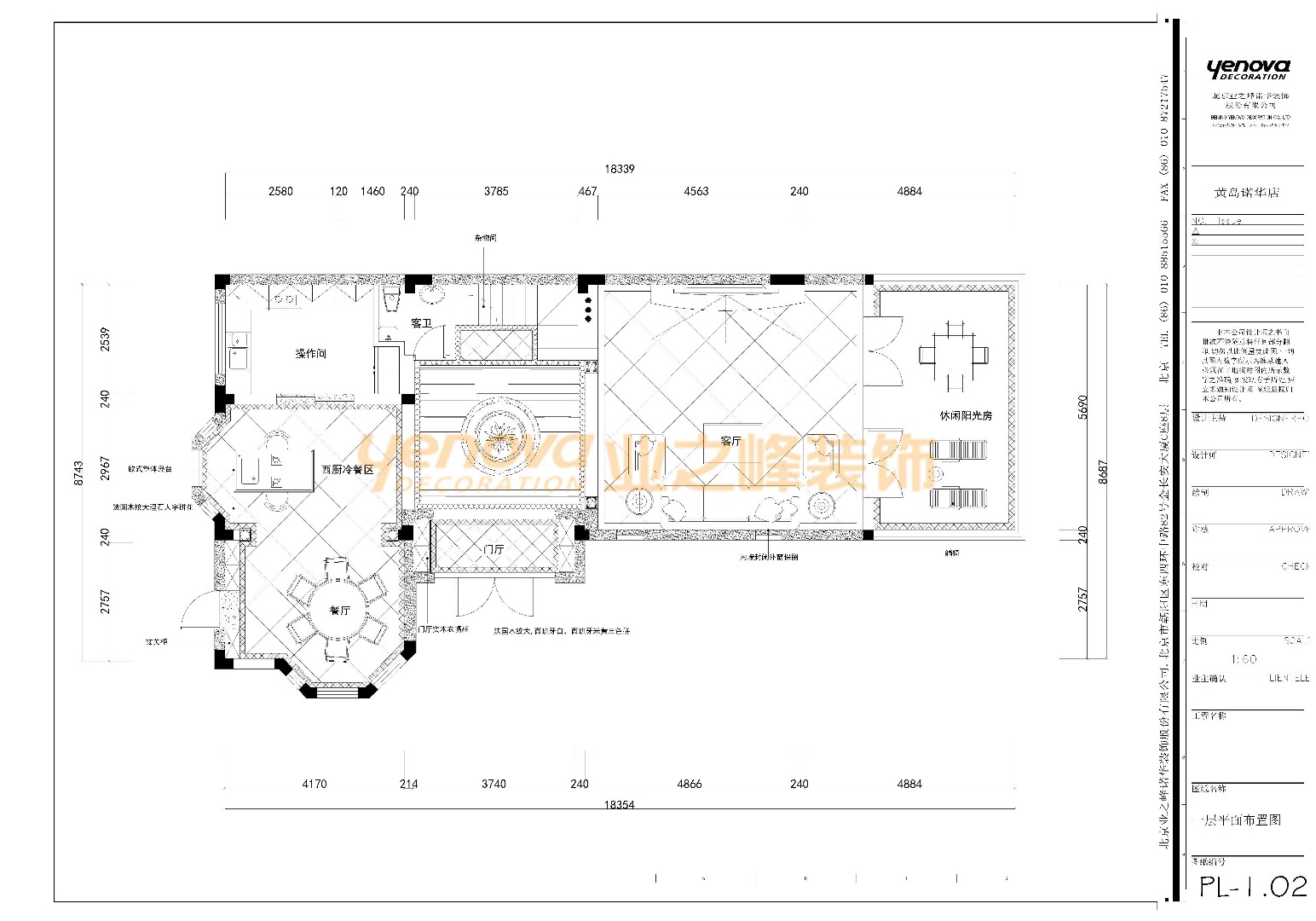
256㎡复式新古典风格万科青岛小镇
发布时间:
2016年03月16日
小区:万科青岛小镇 面积:256㎡ 户型:复式 风格:新古典风格
设计说明
此项目为青岛小镇二期256平米,方案中的客户美满的三口之家,追求高品质的生活,对设计要求相对比较高。
其室内空间在造型和色彩搭配上展示出空间带来的美感。客厅空间是家庭装饰的核心部分,在颜色的搭配上使空间丰富而不凌乱,奢华而不张扬。并在色彩的选择上与客厅空间相呼应。整体设计沉稳大方,别具一格。
客厅











京公安网备11010502040911