150㎡三居新古典风格迪生山庄
发布时间:
2016年03月09日
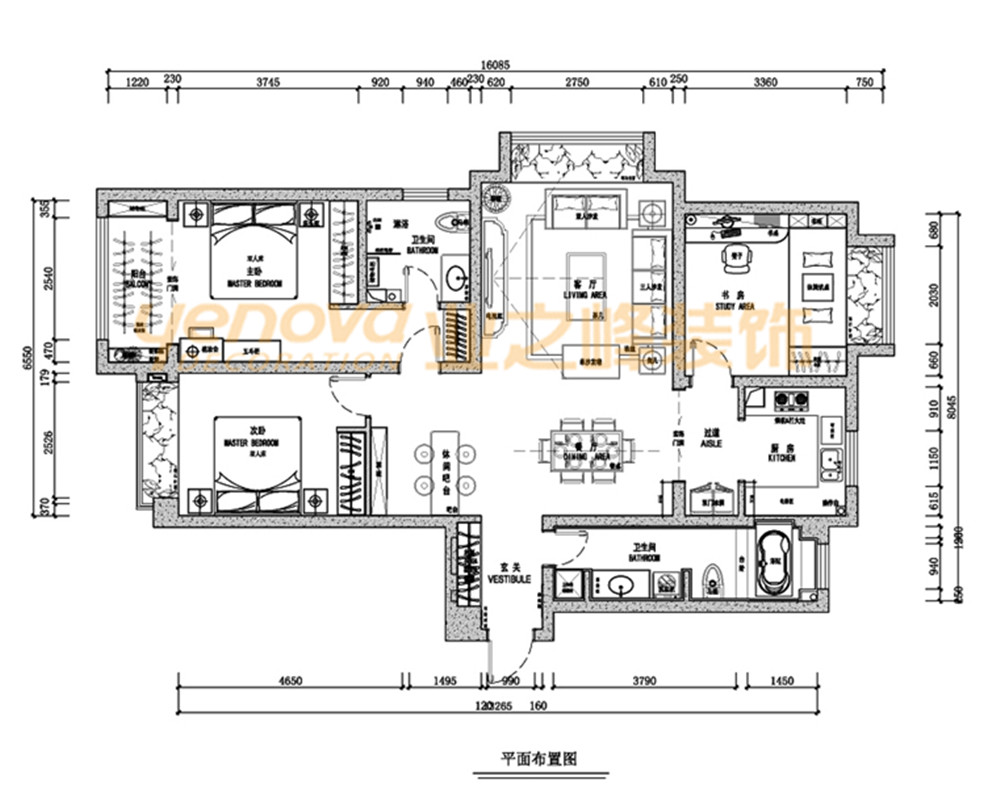
小区:迪生山庄 面积:150㎡ 户型:三居 风格:新古典风格
设计说明
吧台区、酒柜吧台区:采用实木橡木材质,庄重、典雅、大气,充分彰显客户品味。
精致厨房区:厨房区采用与吧台、酒柜区同样的实木橡木材质,加上墙面仿古瓷砖的烘托,将其精致、细腻的一面表现的淋漓尽致,加上将冰箱外置更是大大增加了厨房的使用面积。
餐厅区:典雅大方
户型图

客厅



餐厅

卧室





京公安网备11010502040911