700㎡别墅新古典风格同安路700号
发布时间:
2015年11月12日
小区:同安路700号 面积:700㎡ 户型:别墅 风格:新古典风格
设计说明
它的设计风格是欧式新古典主义风格。新古典主义时期是在18世纪50年代开始发展,出于对洛可可风格轻快和金凯莎•奥斯卡法式古典家具感伤特性的一种反抗,也有对古罗马城考古挖掘的再现,体现出人们对古代希腊罗马艺术的兴趣。新古典主义设计风格其实是经过改良过的古典主义风格。新古典风格从简单到繁杂,从整体到局部,精雕细琢,镶花刻金都给人一丝不苟的感觉,一方面保留了材质,色彩的大致风格,仍可以很强烈的感受传统的历史痕迹和浑厚的文化底蕴,同时又摒弃了过于复杂的肌理和装饰,简化了线条。新古典在居室设计方面的特点
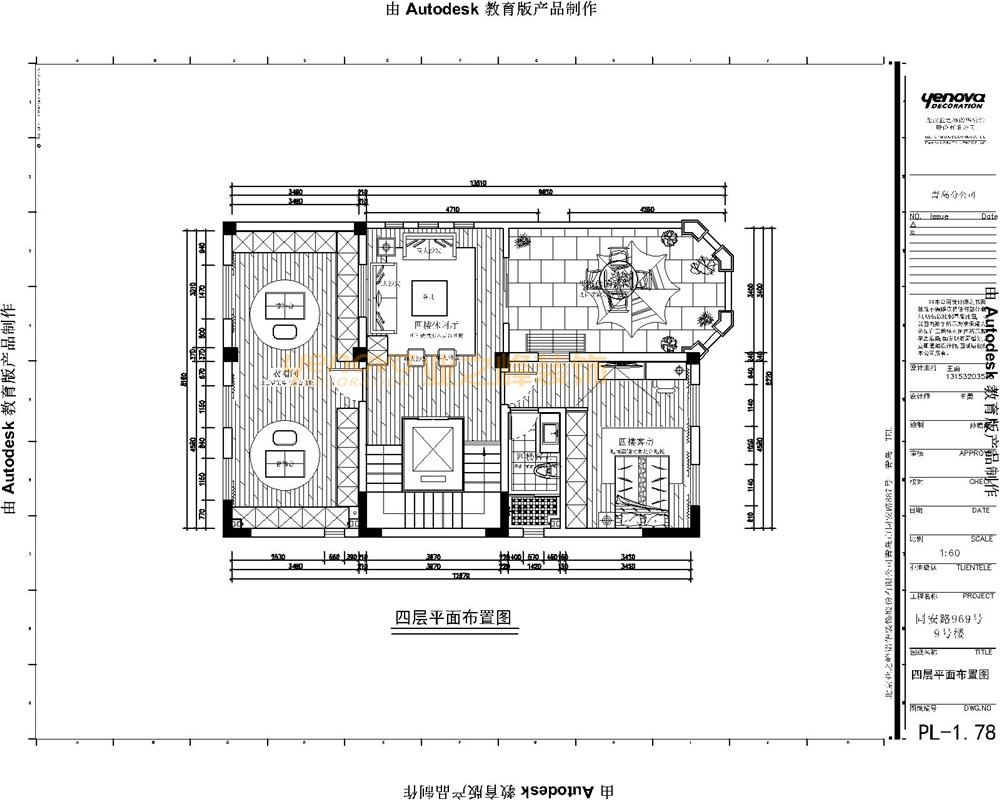
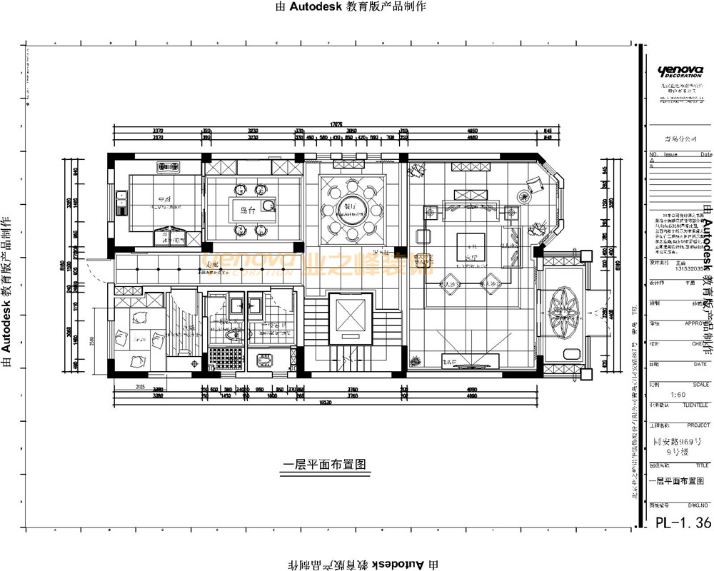
户型图

儿童房


卧室


卫生间

客厅












京公安网备11010502040911