180㎡平层简欧风格湛园海德公园一号
发布时间:
2015年07月30日
小区:湛园海德公园一号 面积:180㎡ 户型:平层 风格:简欧风格
设计说明
本案设计概念是对于具有高贵气质与慑人风采的女性形象的想象,风格奢华而不奢靡,贵气而不张扬,简化的古典线条,带着一种悠闲舒适感。空间富有的钻石绒硬包以及镜面对空间的延伸,让空间的质感细腻的呈现出了别样的奢华度。大面积的珠光白漆饰面增加了空间的温婉之气,极富心思的家具配饰,隐约的显露了她的内在美。设计师想让样板空间能让人感觉娴静舒适,让它高贵优雅,倾城倾国之气弥散开来。
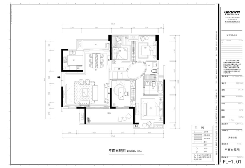
户型图

卧室

餐厅

客厅







京公安网备11010502040911