500㎡别墅新古典风格骊山国际
发布时间:
2015年07月30日
小区:骊山国际 面积:500㎡ 户型:别墅 风格:新古典风格
设计说明
大气豪华只是传统欧式的表面形式,传统欧式风格居室不但富有浪漫的欧式文化,而且还具有浓厚的艺术氛围和独特的美学欣赏,以闹中取静、休闲、舒适、轻松的设计思路,风格上采用欧式新古典主义的设计构思,整体空间氛围褪去古典主义厚重的外壳,造型上取消旧古典主义繁杂造型,而用简练的线条勾勒出丰富的空间,轮廓分明更加舒适、大方、温馨,还原生活本色。选择了新古典风格,就是选择了阳光般的温情闲适的生活......
提高我们的审美感,迎合人们的心理要求,能够创造舒适的环境,增加生活的乐趣。对别墅空间细部规划与混搭材质的应用突显,以达到一种具有清新艺术气息的和谐空间,赋予其美感却又不失其和谐,这适应了时代的发展潮流。材质与灯光协调的搭配构成尊贵的空间,同时又能美化空间。 在培养和提高自己各方面的设计能力的同时又将“独特和谐”的设计理念在家装空间设计中得到充分的运用发挥,将独特的设计元素与理念进行整理加工构成新的空间形象,赋予其时代的美感。让室内空间在设计上通过细部规划设计体现出自己独有的特色,传达良好的视觉形象。他们在生活环境中不断尝试新的概念、新的语言、符号和新的空间表达方式,他们希望每天都有新的故事出现,追求创意是他们的本性 。
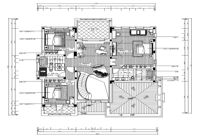
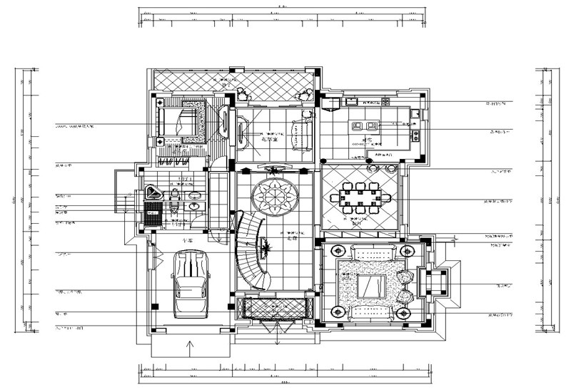
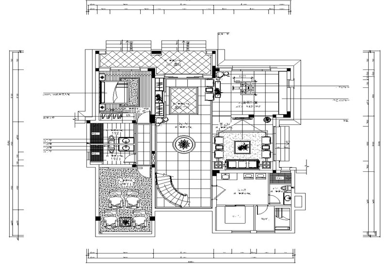
户型图

儿童房

卧室

客厅










京公安网备11010502040911