100㎡二居简欧风格中海临安府
发布时间:
2015年07月30日
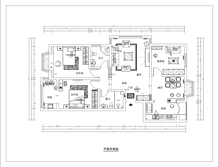
小区:中海临安府 面积:100㎡ 户型:二居 风格:简欧风格
设计说明
本案的设计风格为简约欧式,营造典雅、自然、高贵的气质,浪漫的情调是本案的主题。
设计手法上从整体到局部、从空间到室内陈列塑造,都给人一种精美印象。一方面保存了材质、色彩的大致感受,淡蓝色和木色家具有助于凸起清贵和舒雅,格调一样的壁纸、地毯、家具、外罩等装饰织物安置的家居摒弃了古典风格过于复杂的肌理和装饰,接收现代风格的长处,简化了线条,凸显简练美,出力塑造尊贵又不掉高雅的居家情调。
户型图

卧室


客厅



书房

餐厅





京公安网备11010502040911