128㎡平层简欧风格中铁华胥美邦
发布时间:
2015年07月29日
小区:中铁华胥美邦 面积:128㎡ 户型:平层 风格:简欧风格
设计说明
本方案是采用简欧的设计风格,诠释了家的含义,极力打造出温馨简单大方的氛围。客户是一对受过高等教育的夫妻,有一个儿子,女主人是高级会计师,所以对细节追求比较高。男主人是自己做外贸生意,比较绅士和平易近人,比较喜欢有品位的东西。客餐厅采用原木色强化复合地板,简单自然,增大了空间感。客厅电视背景墙运用壁纸和木塑收边条,温馨而不失优雅。阳台做了收纳柜,即增大了收纳空间,也和电视墙有了呼应。厨房外扩后,餐厅比较规整。家具多采用白色系类,符合了女主人对白色的追求。白色的家具配合质感鲜明的坐垫,麻布系列的窗帘于毛绒地毯的呼应。
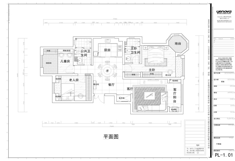
户型图

客厅



餐厅






京公安网备11010502040911