138㎡三居简欧风格智慧之城
发布时间:
2015年07月26日
小区:智慧之城 面积:138㎡ 户型:三居 风格:简欧风格
设计说明
简约、质朴的设计风格是众多人群所喜爱的,生活在繁杂多变的世界里已是烦扰不休,而简单自然的生活空间却能让人身心愉悦,感到宁静和安逸;本案设计是藉著室内空间的解构和重组,满足业主对悠然自得的生活的向往和追求,在纷扰的现实生活中找到平衡,缔造出一个令人心驰神往的写意空间。
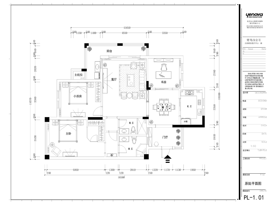
户型图

餐厅

儿童房

客厅


卧室





京公安网备11010502040911