138㎡平层宋氏美学红庙探花府
发布时间:
2026年01月02日
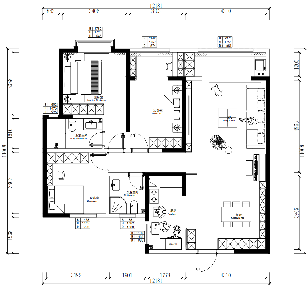
小区:红庙探花府 面积:138㎡ 户型:平层 风格:宋氏美学
设计说明
本案的风格是宋式美学。宋式美学设计秉持 “去芜存菁” 的原则,主张摒弃多余的装饰与繁杂的元素,追求空间与形态的简洁纯粹。在设计中,强调 “无即是有”,通过对线条、结构、空间的精准把控,营造出空灵通透的氛围,让使用者在简洁的环境中感受事物的本质之美。在空间布局上,避免过度堆砌家具与饰品,以开阔的留白增强空间的呼吸感;在造型设计上,采用流畅的直线与柔和的曲线相结合,摒弃复杂的雕花与纹样,展现出朴素而不失精致的形态。通过屏风、隔断等元素划分空间,既保证了空间的独立性,又不破坏整体的通透感。家具陈设上,控制家具的数量与尺寸,留出足够的活动空间,让使用者在空间中感受到自由与舒适。“以简为美、以雅为尚、以意取胜” 的核心特质,为现代宋式美学设计提供了丰富的文化素材与精神内核。
户型图

卧室


餐厅

厨房

客厅






京公安网备11010502040911