113㎡三居原木风格港悦城悦颂
发布时间:
2025年12月26日
小区:港悦城悦颂 面积:113㎡ 户型:三居 风格:原木风格
设计说明
业主为一家四口,两个小孩,一个小孩刚上学,需要自己独立空间,业主夫妻需求则是空间设计简约,满足一家四口的收纳。所以整体设计为现代原木风。
1.原木风追求空间简单和通透,避免过渡的复杂设计,通过墙面的素色乳胶漆与木色,米色柜子做搭配,营造出一种纯粹而简单的质感空间,刚好满足了客户的设计简约需求
2.儿童房做了L型插入式加长书桌满足儿童的学习空间需求,也增加了收纳的空间,采用排骨架床更加节省预算和环保,更适合小孩居住,书桌上方吊柜延伸,增加了收纳空间。
3.入户左手边,做整体储物柜设计,通过合理的分区,设计了鞋柜、餐边柜、装饰柜,电视柜,让储物空间增大,也增加了墙面的整体性,合理设计的镂空区域让空间感更加通透。
4.主卧做L型衣帽间,增加了业主的衣服收纳需求,同时能为进入卧室时有个缓冲区域用来收纳临时衣物。
5.厨房做三联动推拉门,让进出距离进一步扩大,也将厨房的光线引入餐厅。
设计总结:整体设计以简约舒适为主,现代原木风格也适合业主需求,简约,耐看不易过时,为业主提供舒适温馨的家庭环境。
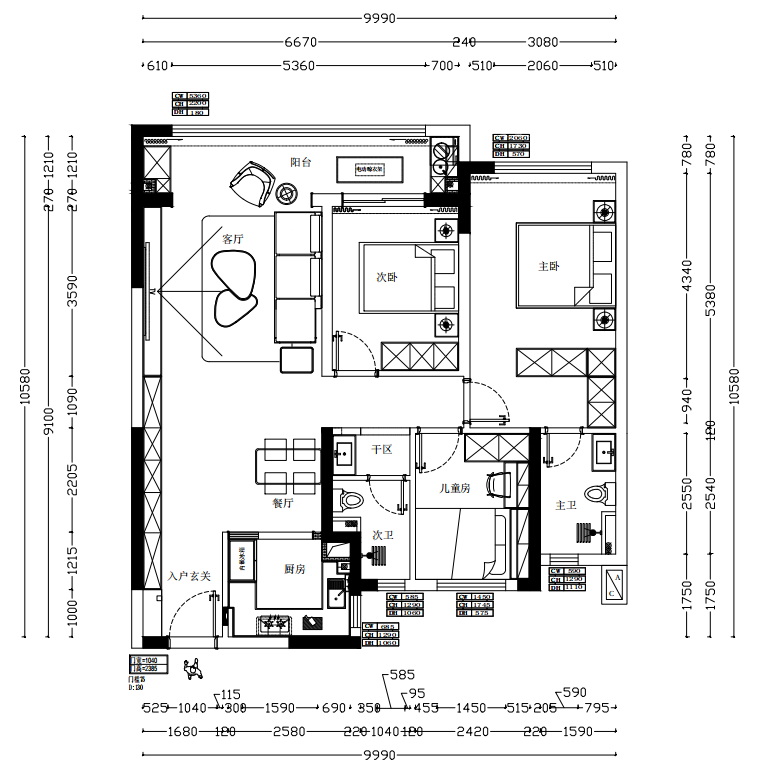
户型图

卧室



餐厅

客厅






京公安网备11010502040911