129㎡平层轻奢风格雁熙云著
发布时间:
2025年12月26日
小区:雁熙云著 面积:129㎡ 户型:平层 风格:轻奢风格
设计说明
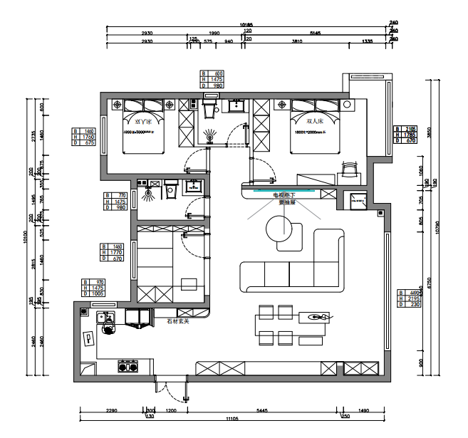
本方案面积为129平方米,方案以现代轻奢为核心风格,围绕“通透、舒适、精致”的理念规划空间,实现功能与美学的融合,以下为核心设计要点:
1. 公共区域一体化
客餐区采用开放式布局,取消多余隔断,让客厅、餐厅、厨房形成连贯的洄游动线,视觉上放大空间尺度;电视背景墙与餐边柜一体化定制,结合大理石、木饰面材质,强化空间整体感与收纳功能。
2. 功能分区精细化
◦ 主卧打造套房式设计,整合睡眠区与观景飘窗,独立卫浴配套智能洁具,兼顾私密与舒适;
◦ 增设多功能书房,融合办公与休憩功能,定制悬浮书桌与收纳柜,利用线性灯光提升空间精致度;
◦ 卫浴空间干湿分离,采用简约的米色瓷砖与嵌入式收纳,优化使用效率。
3. 材质与光影运用
地面通铺大理石纹理瓷砖,搭配浅咖色布艺软装、木饰面与金属线条,营造轻奢质感;全屋采用无主灯设计,结合线性灯带、筒灯与氛围灯,分层打造柔和的光影效果,增强空间层次。
4. 采光与视野优化
客厅、卧室均配置大面积落地窗与轻薄纱帘,最大化引入自然光线;书房与卫浴采用百叶窗,实现采光与隐私的灵活调节,呼应城市景观视野。
户型图

卧室


卫生间

厨房

客厅







京公安网备11010502040911