160㎡三居法式风格翠湖隐秀
发布时间:
2025年12月25日
小区:翠湖隐秀 面积:160㎡ 户型:三居 风格:法式风格
设计说明
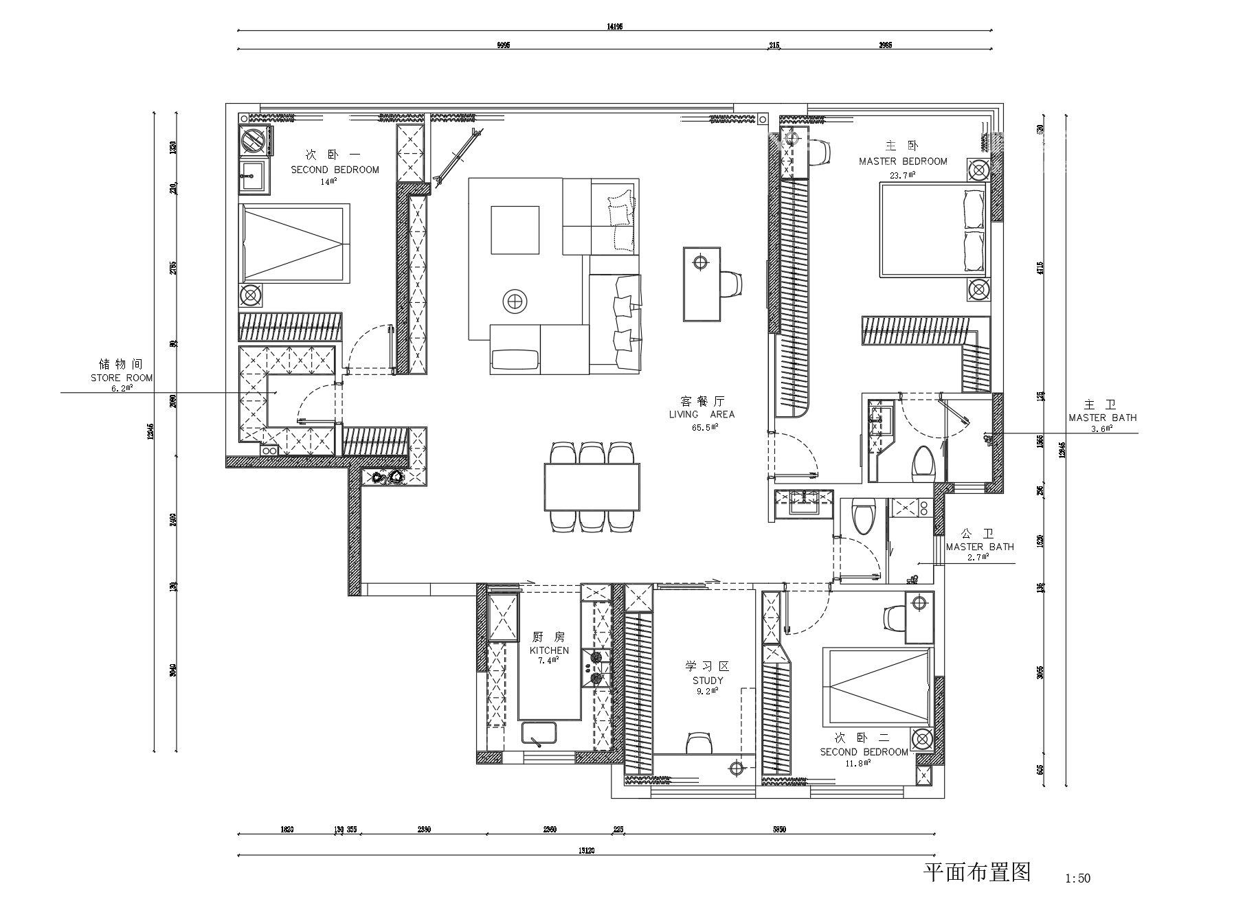
前期与客户沟通的时候客户说须要一个杂物间,物品比较多,阳台的房间平时不住人,所以那个房间不需要卫生间改为杂物间,满足客户的需求,客户同时也需要大横厅需要正正方方的,同时要不遮挡房外的风景,阳台扩出一部分给卧室,洗衣机放在卧室阳台,用墙把阳台分成两个部分,这样可以同时满足这两个要求也显的客厅更加大气。
主卧增加储物空间,考虑到女客户有化妆的习惯,在窗户旁边留一个梳妆台,光线好的同时也让动线更加方便。女客户要一个衣帽间,用L型衣柜隔开的同时也隔开卫生间的门。按照客户的生活习性把主卫扩大,方便两个人同时使用,也预留足够多余的空间。
户型图

户型图

客厅


餐厅





京公安网备11010502040911