567㎡五居轻奢风格远洋庄园
发布时间:
2025年11月13日
小区:远洋庄园 面积:567㎡ 户型:五居 风格:轻奢风格
设计说明
本案为远洋庄园极具代表性的欧式风格复式住宅设计,全景效果图完美呈现其典雅、奢华、庄重且富有人文底蕴的空间气质。设计围绕 “典雅奢华,意蕴悠长” 的核心,注重对称美学、精致细节与经典元素的传承融合。
一,空间布局与动线
开阔仪式感格局:客厅、餐厅与半开放式厨房形成规整通透的公共区域,既保障了空间互动性,又以对称布局彰显欧式大宅的庄重仪式感,满足家庭起居与社交需求。
动线规整流畅:玄关入户即见开阔视野,各功能分区明确且衔接自然,无多余阻隔,尽显欧式居所的从容气度。
二,色彩与材质
主色调:以象牙白、米白为基底,搭配浅金、暖棕等雅致色调,营造出温润奢华的视觉氛围。
材质搭配:选用天然大理石(地面、背景墙)彰显质感,雕花实木注入自然温润,丝绒面料平衡冷硬,水晶与金属线条点缀其间,复刻欧式经典质感。
三,光影与陈设
光影设计:全景落地窗引入充足自然光,搭配水晶吊灯、壁灯与嵌入式射灯的组合照明,光线层次丰富,尽显典雅氛围。
家具与软装:家具选用带雕花、曲线造型的欧式经典款,软装遵循 “精致不繁复” 原则,以欧式挂画、雕花摆件、蕾丝窗帘、毛绒地毯点缀,增添温馨与奢华感。
四,智能融合
融入智能照明、窗帘控制系统,在保留欧式经典韵味的同时,兼顾现代居住的便捷舒适。
总结:设计通过对称美学、经典材质与精致细节的把控,塑造出兼具奢华质感与人文温度的欧式居所,既是对经典风格的传承,也是现代舒适生活的完美诠释,让居者在远洋庄园邂逅一方典雅秘境。
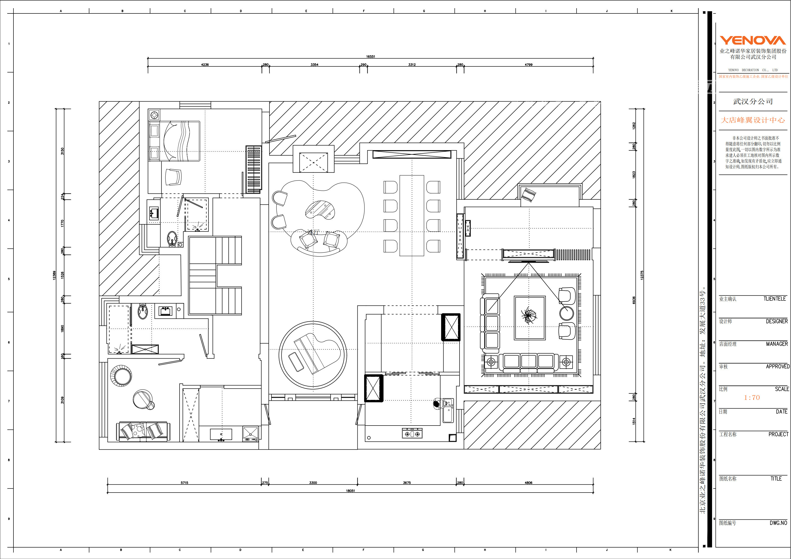
户型图

大厅


客厅





京公安网备11010502040911