0㎡三居现代简约风格专家公寓
发布时间:
2025年11月06日
小区:专家公寓 面积:0㎡ 户型:三居 风格:现代简约风格
设计说明
本方案以“现代简约”为核心,融合功能性与美学,打造开放通透、温馨舒适的居住空间。整体采用中性色调(原木色、浅灰、浅咖)为主,强调线条的简洁与光影的层次感,营造温暖简约的居家氛围。
客餐厅一体化:
开放式设计增强空间互动性,客厅与餐厅无缝衔接,动线流畅。家具:深咖色皮质艺沙发搭配圆形大理石茶几,靠枕与格纹毯增添层次感。电视墙:以简约菱白色乳胶漆搭配落地电视柜,利用房屋层次结构,做整墙餐边柜在增加储物的同时协调整个空间的风格。灯光:以从简的基础上,在多空间实现灯光的补充,局部照明,营造柔和光影。餐厅:浅色大理石餐桌面搭配双色餐椅,桌面装饰物提升精致感,并且更加与整体风格相容。收纳:入户区一体化柜体(挂衣区+换鞋凳+置物区),满足玄关收纳需求。
主卧室:
整体色调:浅灰色为主,搭配原木色线条,营造简约舒适感。双人床搭配舒适床品,整体乳胶漆采用暖白色,增加卧室的温馨,一整排到顶床尾柜增加储物的同时兼顾房间的整体协调性。环形吊灯与筒灯组合,窗帘选用双层设计(纱帘+遮光帘),平衡隐私与采光的效果。
次卧/健身娱乐室:
于整体风格相容,以简约为主,搭配艺术彩色画,简约而不失优雅。白色到顶衣柜最大化收纳,床头柜摆放绿植与小物件增添生活气息。百叶窗调节光线,浅色窗帘保证私密性。
玄关:
将洗衣机,冰箱做整体嵌入定制柜中,在强调整体风格美感的同时,又增加了在空间上的补充和物品使用的便利性。
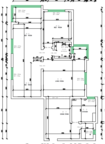
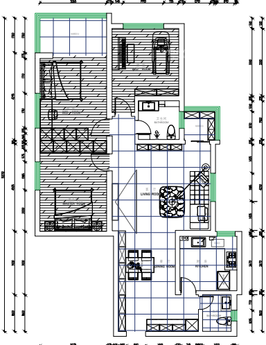
户型图






京公安网备11010502040911