261㎡五居法式风格金地圣爱米伦
发布时间:
2025年11月06日
小区:金地圣爱米伦 面积:261㎡ 户型:五居 风格:法式风格
设计说明
空间设计以法式风格为主,极尽奢华、富丽堂皇,线条利落、清晰,装饰恰到好处,凸显庄重与优雅。负一楼入户门进来左手边是茶室,旁设法式沙发,沙发前是庭院,种植有绿植和花朵点缀。入户门右边利用角落空间,打造钢琴角,保持空间视觉的整体性与美观度,成为浪漫角落。一楼楼梯右手边的餐厨区设置圆形雕花餐桌与米色餐椅,还有米色的吧台,营造兼具仪式感与舒适度,打造浪漫的法式用餐氛围,前面是家庭交流中心,利用高挑空、大型窗户来引入光线,营造通透感设法式沙发与复古落地灯,美观且优雅,打造法式壁炉休闲区,壁炉采用石材雕花造型,采光井是空间通透明亮。楼梯左手边的卫生间采用法式黑白地砖,线条对称,色彩柔和。客房采用深色实木地板提升精致度,墙面以米白色质感乳胶漆为基地搭配法式浮雕营造层次丰富的视觉效果,利用户型的户外衔接空间,打造法式花园过渡区,通过铁艺雕花栏杆、法式绿植花境,实现室内外风格的自然衔接。三楼洗衣房与阳台宽敞,将法式浪漫延伸至户外。
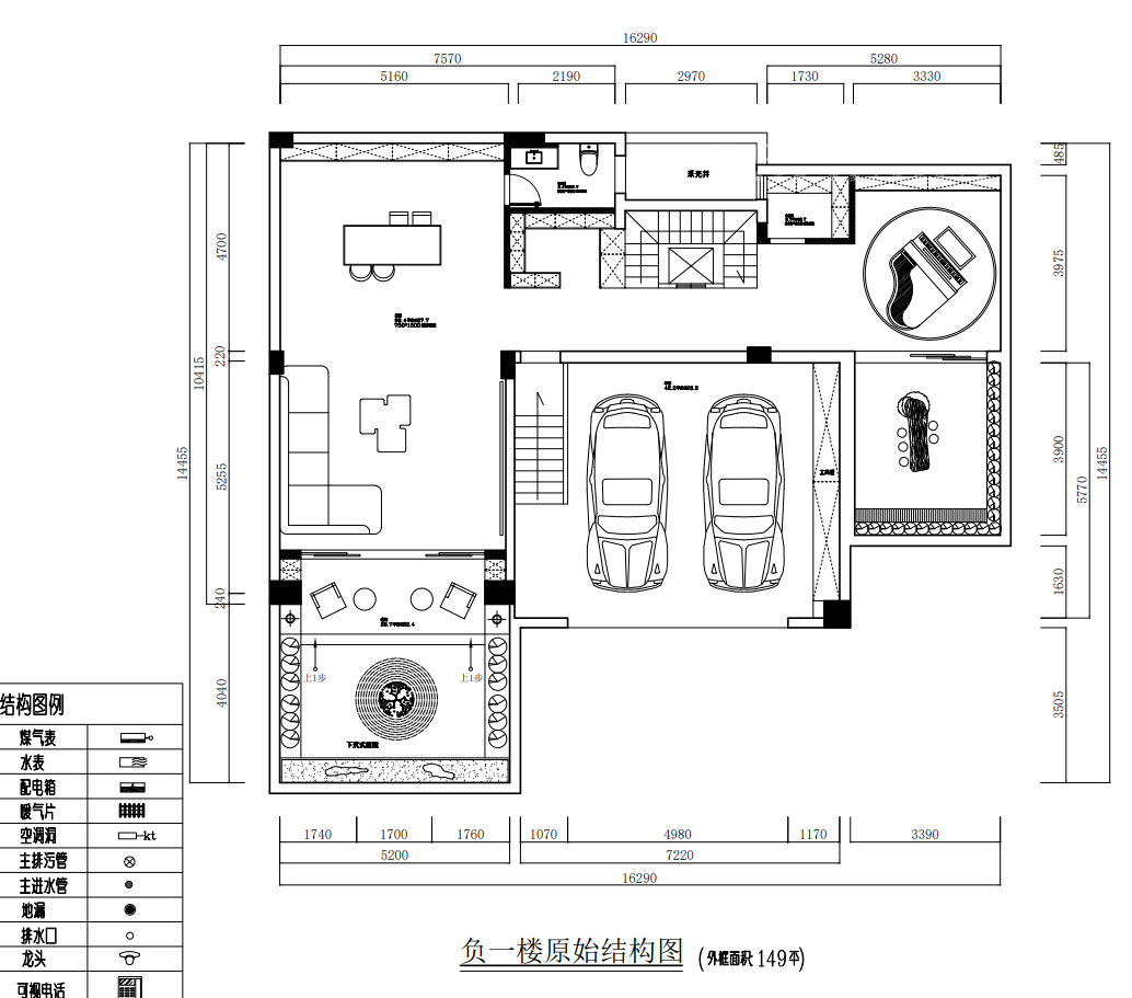
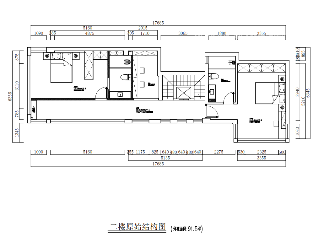
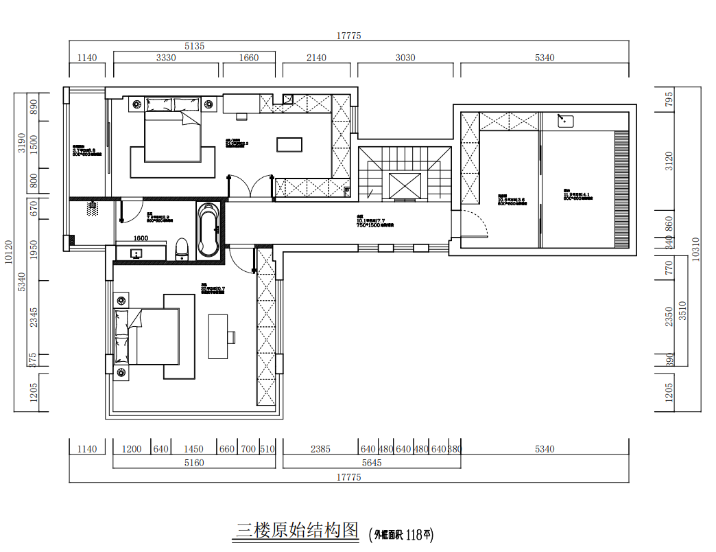
户型图




大厅




客厅


休闲区

楼梯

卫生间





京公安网备11010502040911