北京
【切换】
整屋案例
家居美图
实景案例
装修现场
装修攻略
无数据
搜索
010-84934479
扫码快速拨号 >
扫码快速拨号
首页
效果图
设计师
装修现场
装修攻略
品质保障
了解业之峰
当前位置:
首页
装修图库
案例相册
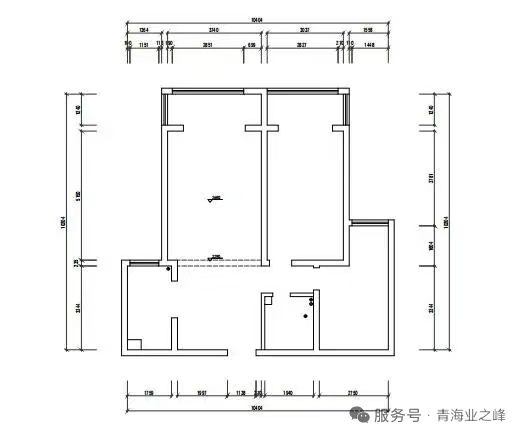
110㎡三居现代简约风格九号公馆
发布时间: 2025年09月24日
小区:九号公馆
面积:110㎡
户型:三居
风格:现代简约风格
设计说明
“现代简约”是一种广受欢迎的室内设计风格和生活理念,它以简洁、实用为核心,摒弃繁复装饰,强调功能性与形式美的统一。以下从设计特点、空间应用、色彩搭配、材质选择、软装搭配和设计理念
户型图
次卧室
主卧室
玄关
大厅
设计说明
户型图
次卧室
主卧室
玄关
大厅
本案设计师
焦磊
主任设计师
免费咨询
我家装成这样多少钱?
㎡
获取报价
相关案例推荐
130㎡三居现代简约风格云水观园
查看详情
128㎡三居现代简约风格万科东望
查看详情
115㎡三居现代简约风格汉口1872
查看详情
197㎡三居现代简约风格天府锦绣
查看详情
90㎡三居现代简约风格天府云城
查看详情
130㎡三居现代简约风格翡翠城三期
查看详情
113㎡三居现代简约风格中铁诺德澜湾
查看详情
118㎡三居现代简约风格星雨华府
查看详情
110㎡三居现代简约风格万科东望
查看详情
138㎡三居现代简约风格胜达君悦府
查看详情
82㎡三居现代简约风格桂语映月
查看详情
100㎡三居现代简约风格福星惠誉福星华府
查看详情
107㎡三居现代简约风格福星惠誉福星华府
查看详情
128㎡三居现代简约风格中建壹品汉芯公馆
查看详情
122㎡三居现代简约风格都市华庭
查看详情
135㎡三居现代简约风格招商公园1872
查看详情
98㎡三居现代简约风格南山纵横滨江时代
查看详情
91㎡三居现代简约风格星河绘
查看详情
108㎡三居现代简约风格金色华府
查看详情
140㎡三居现代简约风格天房樾梅江
查看详情
展开
报价计算器
免费量房
免费设计
回到顶部