95㎡三居新中式风格现代逸城
发布时间:
2022年11月04日
小区:现代逸城 面积:95㎡ 户型:三居 风格:新中式风格
设计说明
男主人是36岁的小企业主,女主人是政府公务员,家里一个女孩两岁多,还有一个男孩学步阶段。男主人乐于结交朋友,女主人喜欢干净。现代简约正好是他们喜欢的风格,同时,现代简约也非常适合他们。
首先,简约不是简单,它是经过深思熟虑后经过创新得出的设计和思路的延展,不是简单的“堆砌”和平淡的“摆放”,它凝结着设计师的独具匠心,既美观又实用。如客厅中的沙发,虽然没有了欧式的华丽与繁琐,但是它的简单大方依然很美丽,并且这样的沙发可以做更多的人,满足了家里客人多的需求。
在家具配置上,白亮光系列家具,独特的光泽使家具倍感时尚,具有舒适与美观并存的享受。在配饰上,延续了黑白灰的主色调,以简洁的造型、完美的细节,营造出时尚前卫的感觉。不论是卧室还是客厅,本设计都集中体现了这一点,同时也满足了业主的要求,避免了白色的木地板带来的不便。
现代简约中离不开金属灯罩、玻璃灯、高纯度色彩、线条简洁的家具、到位的软装。同时考虑到业主家里还有两个年幼的孩子,安全应该放在首位,所以就将玻璃灯只吊在了顶棚,避免别的地方的使用带来安全隐患。电视背景墙上的软包,实惠又大方,同时不失时尚,
是不错的选择。
现代简约中色彩常常跳跃出来,但是女主人喜欢温和典雅的空间,所以本设计注意颜色的过度,尽量避免了突兀色彩的出现,以满足女主人的要求。
本设计中在简约的同时又辅以混搭,给空间注入新的元素,富有趣味性。希望可以让业主在忙碌工作了一天回到家里能够得到彻底的放松!
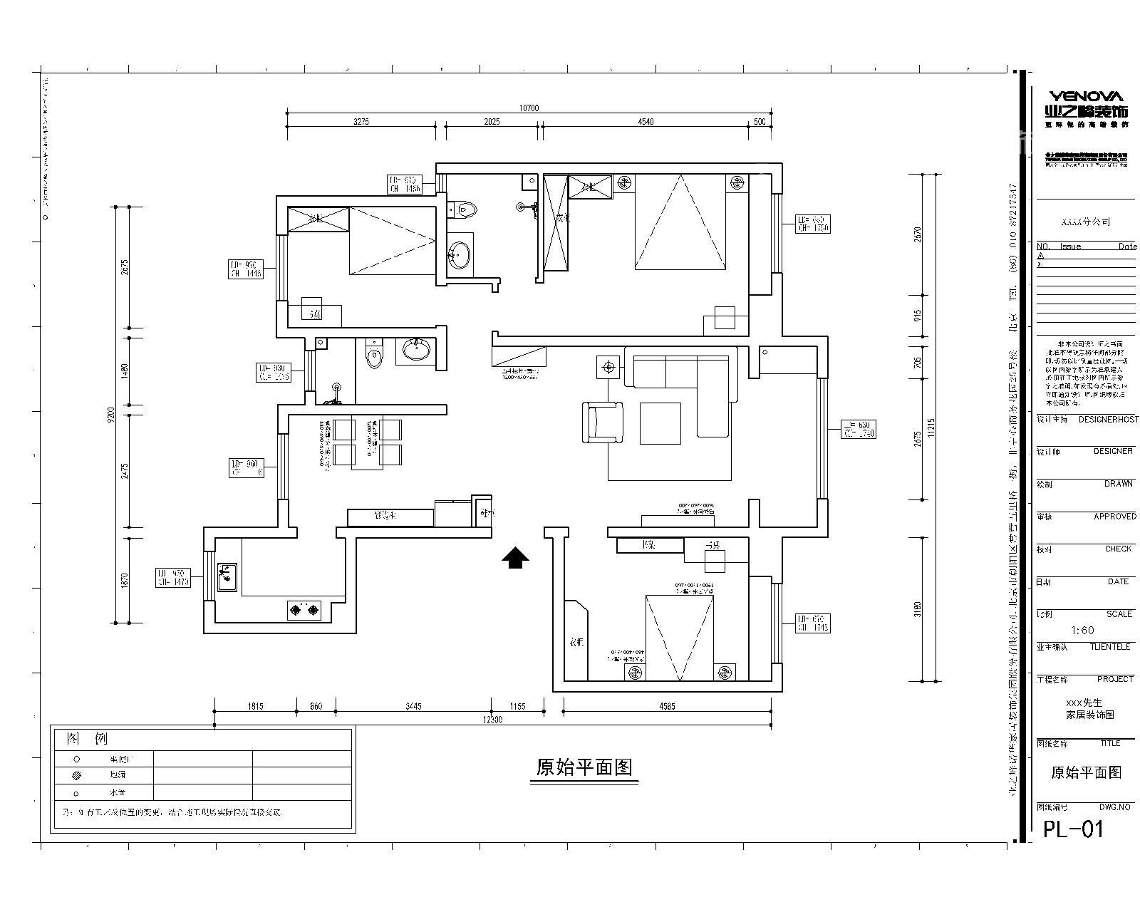
户型图

卧室




客厅

餐厅

休闲区





京公安网备11010502040911