北京
【切换】
整屋案例
家居美图
实景案例
装修现场
装修攻略
无数据
搜索
010-84934479
扫码快速拨号 >
扫码快速拨号
首页
效果图
设计师
装修现场
装修攻略
品质保障
了解业之峰
当前位置:
首页
装修图库
案例相册
118㎡三居北欧风格建业十八城
发布时间: 2022年08月13日
小区:建业十八城
面积:118㎡
户型:三居
风格:北欧风格
设计说明
设计之于生活,必然是不可或缺的。
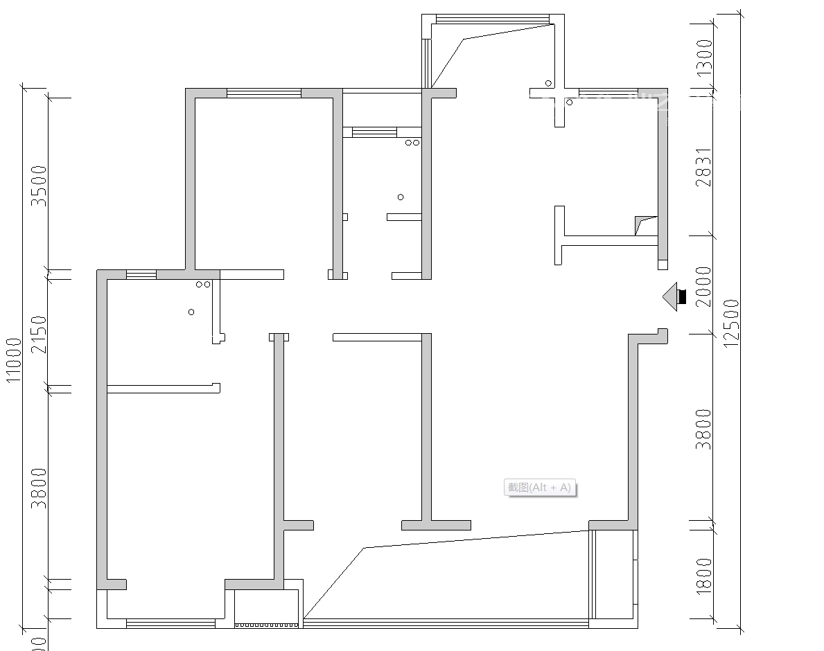
户型图
卫生间
卧室
客厅
玄关
餐厅
厨房
设计说明
户型图
卫生间
卧室
客厅
玄关
餐厅
厨房
本案设计师
王茹
主任设计师
免费咨询
我家装成这样多少钱?
㎡
获取报价
相关案例推荐
90㎡三居北欧风格鼎盛璟城
查看详情
130㎡三居北欧风格远洋万和城
查看详情
128㎡三居北欧风格中建大公馆
查看详情
160㎡三居北欧风格车城温泉花园
查看详情
127㎡三居北欧风格齐润花园
查看详情
140㎡三居北欧风格泰达时代
查看详情
120㎡三居北欧风格融侨华府
查看详情
125㎡三居北欧风格719研究所
查看详情
90㎡三居北欧风格景兴西里
查看详情
109㎡三居北欧风格向荣里
查看详情
140㎡三居北欧风格正商东方港湾
查看详情
140㎡三居北欧风格漫山兰庭
查看详情
116㎡三居北欧风格百步亭和谐里
查看详情
120㎡三居北欧风格清凉山居
查看详情
104㎡三居北欧风格连城水岸
查看详情
110㎡三居北欧风格汇悦城
查看详情
180㎡三居北欧风格泰悦豪庭
查看详情
130㎡三居北欧风格锦绣府
查看详情
115㎡三居北欧风格华侨城欢乐天际
查看详情
125㎡三居北欧风格中海社区御峰官邸
查看详情
展开
报价计算器
免费量房
免费设计
回到顶部