307㎡别墅美式风格万锦公馆
发布时间:
2022年08月12日
小区:万锦公馆 面积:307㎡ 户型:别墅 风格:美式风格
设计说明
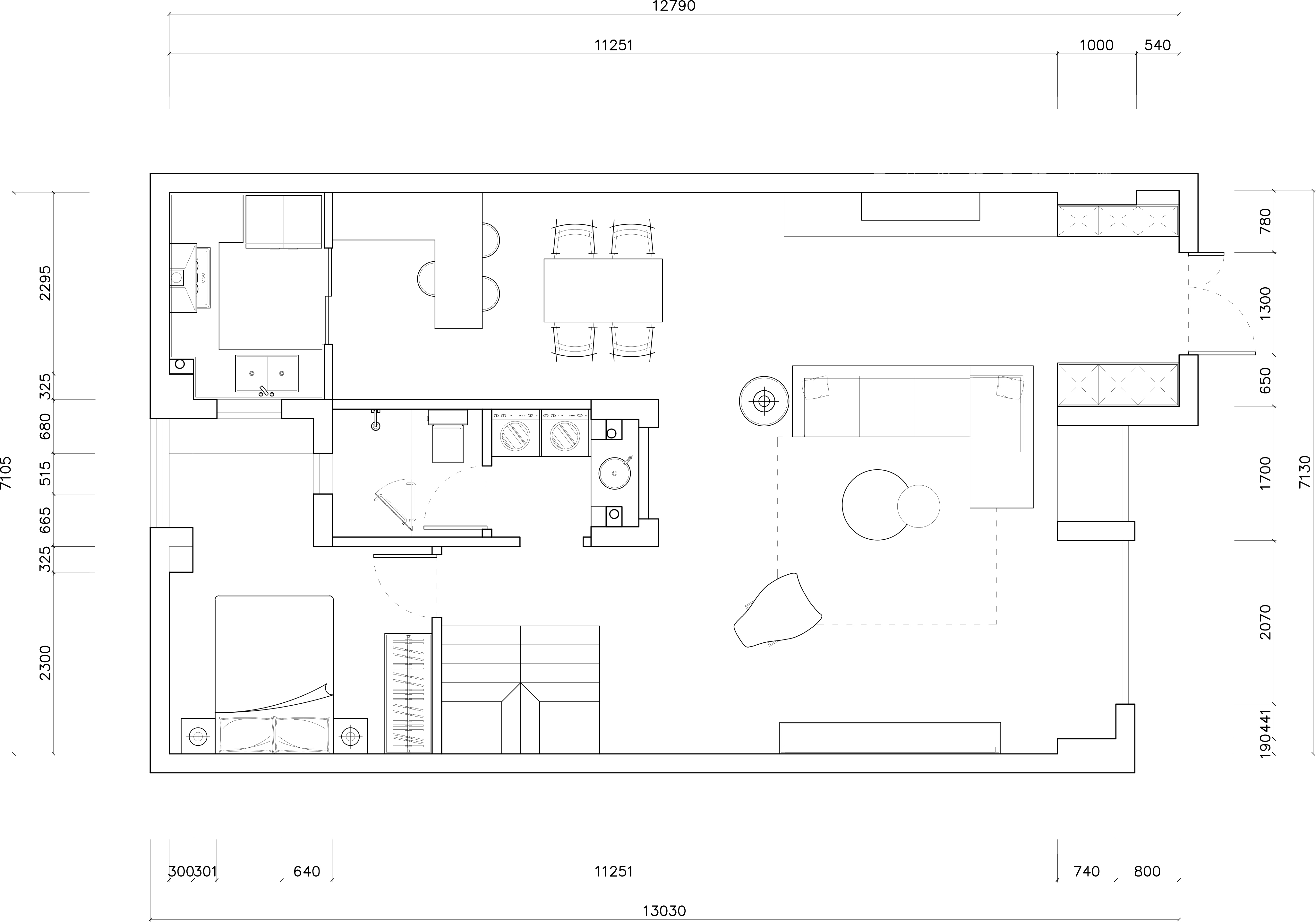
这是一套三层洋房下跃美式风格的装修,打造一个适合于三代人共同生活,充满自然生机、气息融洽的家。以生活需求为立足点,以内在情感连接人与人,以丰富的体验带来愉悦,以超越时间的气质和场域精神塑造艺术美。打开一层客餐厨空间作为整体,U型厨房增加了操作的便携性。二层保留主卧套房和次卧室,合理运用了空间。负一层大空间则作为客卧室以及休闲室、整体设计以舒适感为主。
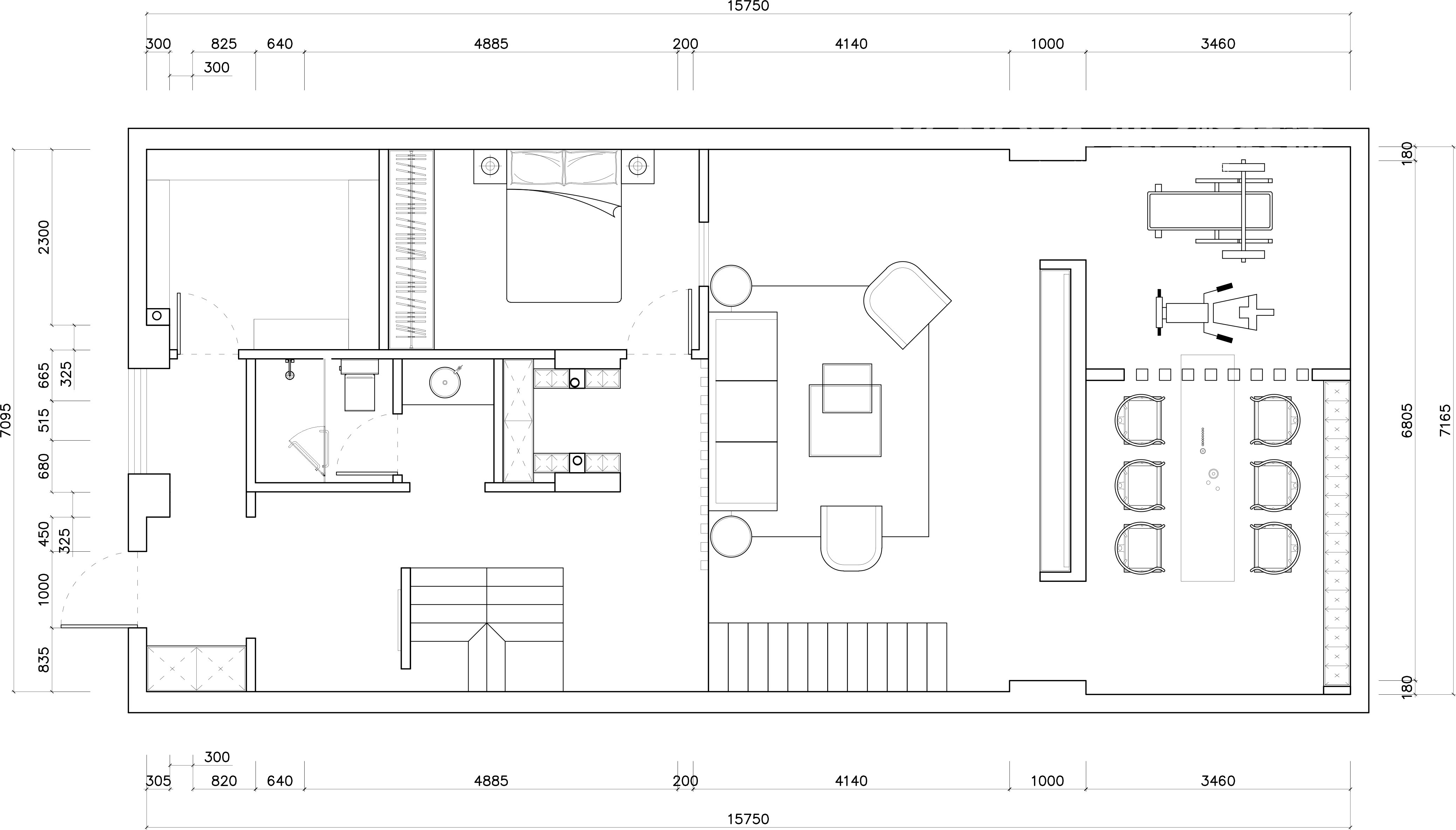
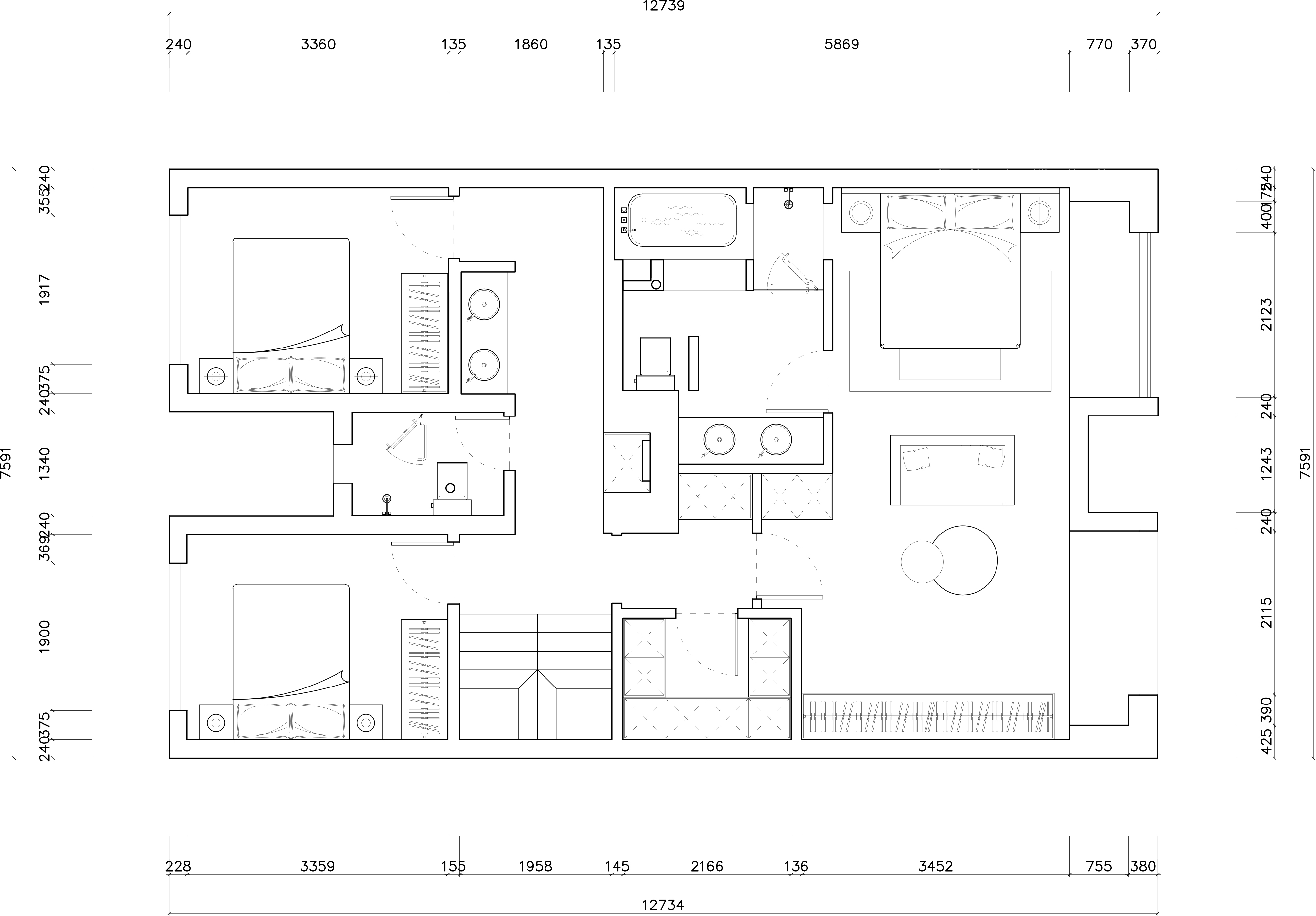
户型图



户型图


















京公安网备11010502040911