北京
【切换】
整屋案例
家居美图
实景案例
装修现场
装修攻略
无数据
搜索
010-84934479
扫码快速拨号 >
扫码快速拨号
首页
效果图
设计师
装修现场
装修攻略
品质保障
了解业之峰
当前位置:
首页
装修图库
案例相册
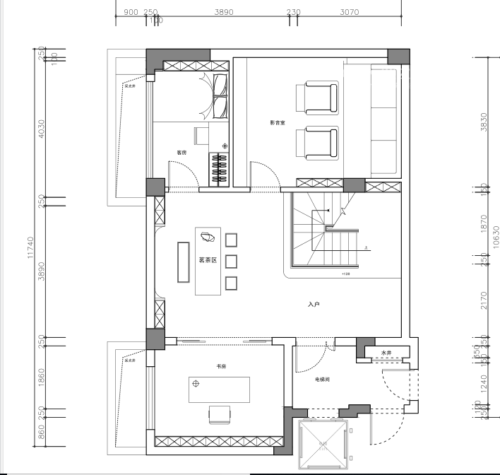
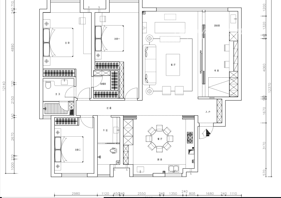
242㎡复式简欧风格蓝天熙郡
发布时间: 2022年05月11日
小区:蓝天熙郡
面积:242㎡
户型:复式
风格:简欧风格
设计说明
咨询电话:0791-86296016,客户复式楼,一楼简欧风格,地下室新中,餐厅选用金黄色,显得富丽堂皇,但不浮夸,卧室采用无主灯设计,配上背景墙的设计,视觉冲击感很强烈
户型图
休闲区
书房
卫生间
卧室
餐厅
设计说明
户型图
休闲区
书房
卫生间
卧室
餐厅
本案设计师
业之峰专业设计师
免费咨询
我家装成这样多少钱?
㎡
获取报价
相关案例推荐
140㎡复式简欧风格奥城天玺
查看详情
220㎡复式简欧风格海韵华府
查看详情
260㎡复式简欧风格南阳装修南召案例
查看详情
308㎡复式简欧风格 萨拉曼卡
查看详情
200㎡复式简欧风格蔷薇溪谷
查看详情
159㎡复式简欧风格阳光城·PLUS
查看详情
200㎡复式简欧风格浐灞1号
查看详情
265㎡复式简欧风格龙湖源著
查看详情
270㎡复式简欧风格时代尊城
查看详情
260㎡复式简欧风格山水壹号
查看详情
290㎡复式简欧风格博园岚郡
查看详情
318㎡复式简欧风格剑桥春雨
查看详情
220㎡复式简欧风格军山半岛
查看详情
700㎡复式简欧风格东方之珠
查看详情
250㎡复式简欧风格山水壹号
查看详情
220㎡复式简欧风格万科汉口传奇唐樾
查看详情
280㎡复式简欧风格康大御金湾
查看详情
260㎡复式简欧风格龙腾国际花园
查看详情
385㎡复式简欧风格绿地城
查看详情
260㎡复式简欧风格绿地云香郡
查看详情
展开
报价计算器
免费量房
免费设计
回到顶部