144㎡三居极简风格格林上东
发布时间:
2022年03月17日
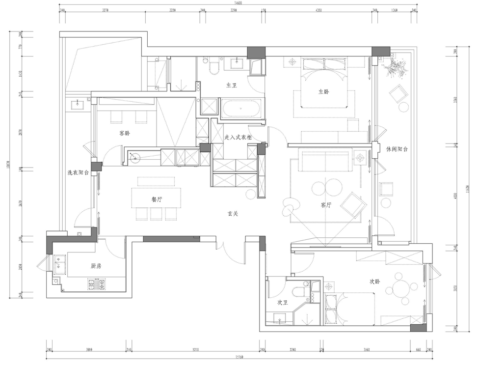
小区:格林上东 面积:144㎡ 户型:三居 风格:极简风格
设计说明
因为业主非常喜欢极简风格,本事也有一点的洁癖,所以非常注重空间的干净整洁
快节奏的生活需要静下来,简单和宁静是这个方案的主旋律,方案中运用大量冷色系元素
使人回到家中能够快速冷静下来,放慢节奏,沉浸入属于自己的小世界,享受简单的小幸福
没有过多繁琐的装饰也会让整个家看起来更加通透和明亮,同时对于造型几乎没有做,所有的储物空间都是隐蔽的,色彩搭配运用护墙板做处理达到和谐。
户型图

卫生间

卧室

餐厅

客厅







京公安网备11010502040911