199㎡别墅轻奢风格碧湖苑
发布时间:
2022年03月16日
小区:碧湖苑 面积:199㎡ 户型:别墅 风格:轻奢风格
设计说明
本案的色彩搭配是家居空间的基调,轻奢氛围的体现,需要合理搭配色彩,才能展现出丰富的魅力。驼色、象牙白、奶咖、碳灰、黑色等都是轻奢风格中常用的色彩,可以营造出空间的高雅调性,质感更为饱满、时尚。化繁为简,是轻奢风格的另一大特色。在空间布局上,轻奢风格强调留白处理,简约而有考究的布局强化了美观和实用性,不再拘泥于复杂的造型和繁复的雕花凸显精致和轻奢,令空间简约而不简单。所谓轻奢,并不是一味追求质感而忽视生活的舒适度,而是在有所取舍的基础上,利用设计手法营造出家的温馨。线条勾勒的空间,巧妙设计凸显艺术气息,家不仅高雅美观,还舒适温馨。现代轻奢风格的家居空间中,饰品的选择也是非常有考究的。灯饰、摆件、挂饰等等多选择金属、玻璃等材质的,强调质感的体现,视觉呈现上更加高级。
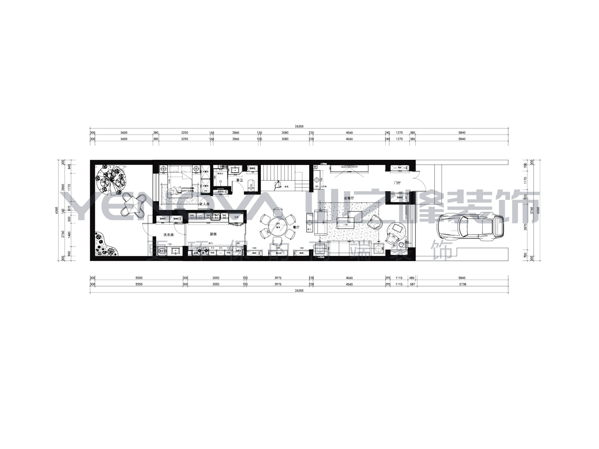
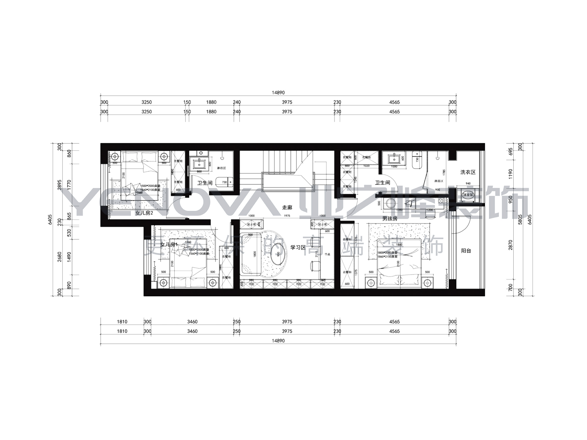
户型图



客厅





阳台

卧室


餐厅





京公安网备11010502040911