140㎡三居美式风格绿地璀璨天城
发布时间:
2022年01月20日
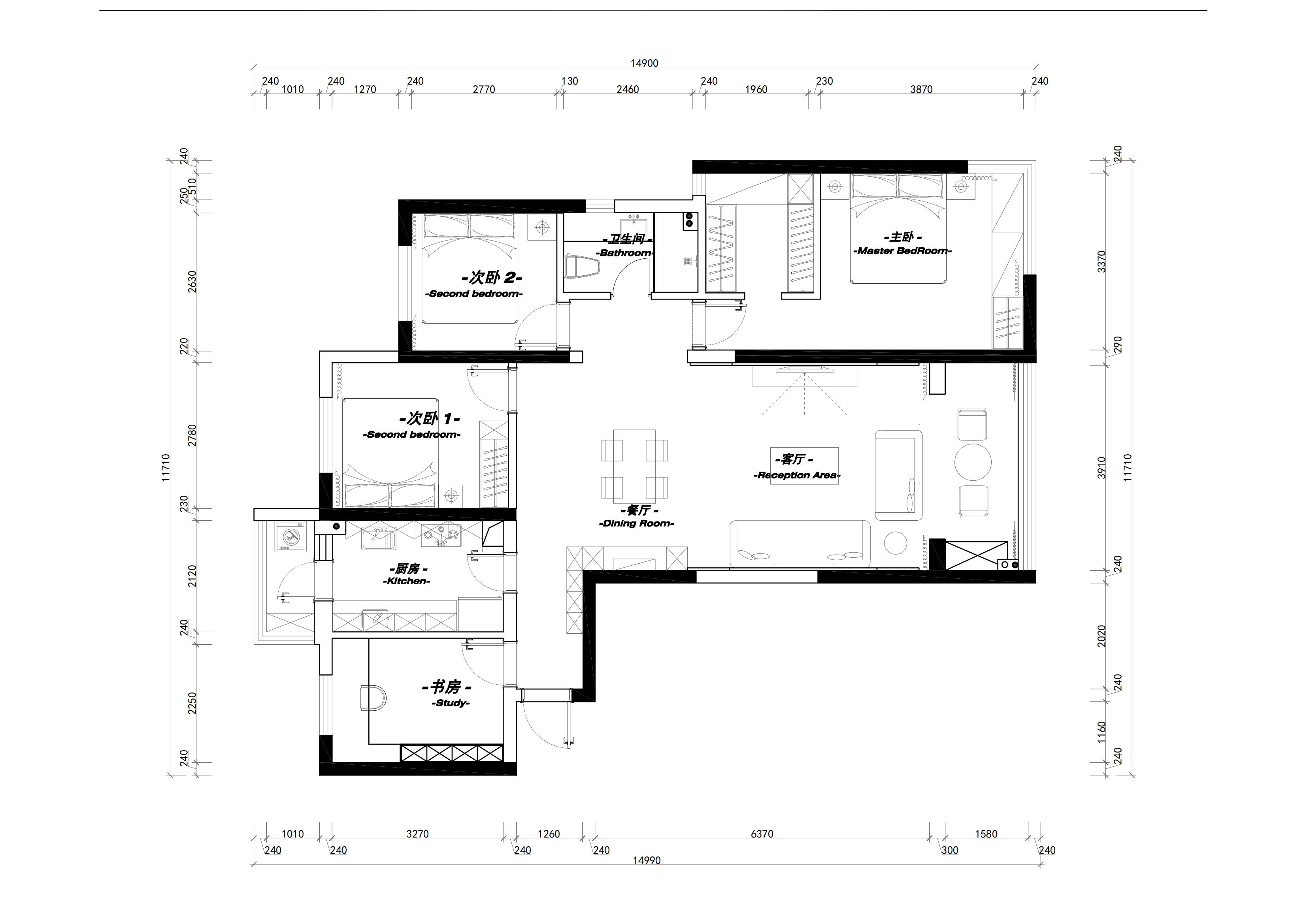
小区:绿地璀璨天城 面积:140㎡ 户型:三居 风格:美式风格
设计说明
业主对美式风格情有独钟,但又希望现代一些,所以本案设计在硬装的装饰线条上来凸显古典美式风格,色调以白色为主,保留美式的经典线条又看起来具有现代感,软装家具是现代风格,与美式的硬装搭配起来相得益彰。
户型图

卧室



客厅


玄关



餐厅






京公安网备11010502040911