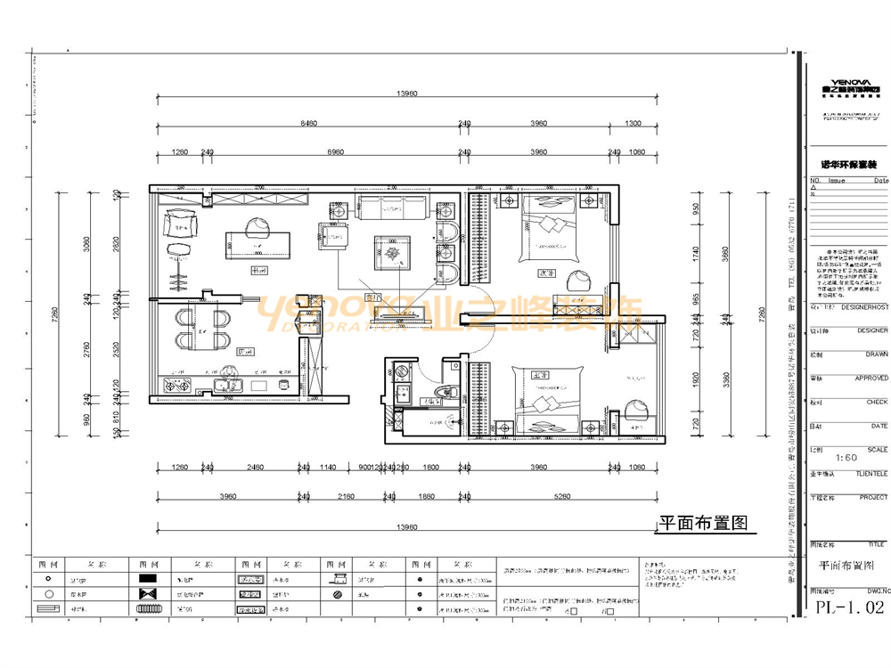
120㎡三居新中式风格台南路小区
发布时间:
2022年01月06日
小区:台南路小区 面积:120㎡ 户型:三居 风格:新中式风格
设计说明
方案为中式风格,色调主要是用暖色调,营造典雅、自然、高贵的气质感觉大气又不缺少稳重的设计要点。重视室内空间的使用效能,强调室内布置按功能区分的原则进行,将厨房外面和餐厅融成一体做位书房区域,厨房空间较大,餐厅和厨房公用,卫生间通过墙砖等颜色增大采光;从整体到局部、从空间到室内陈设塑造,精雕细琢,给人一丝不苟的印象。整个空间色彩纯粹,搭配温馨大气。
户型图

卧室

玄关

书房

客厅






京公安网备11010502040911