195㎡五居现代简约风格宏润翠湖天地
发布时间:
2021年12月23日
小区:宏润翠湖天地 面积:195㎡ 户型:五居 风格:现代简约风格
设计说明
本方案采用现代风格,大体上以灰白为主,简约而不简单。整体灰白色调,软装上多谢颜色点缀,注重家具摆设,美观时尚,受很多人的欢迎。整个屋子搭配优雅又轻快,不死板,红色椅子和金属架子点缀整个空间,使得该空间素净优雅。设计中所用线条以及摆件配饰中的几何线条,使得空间看起来简洁明快,对比鲜明。
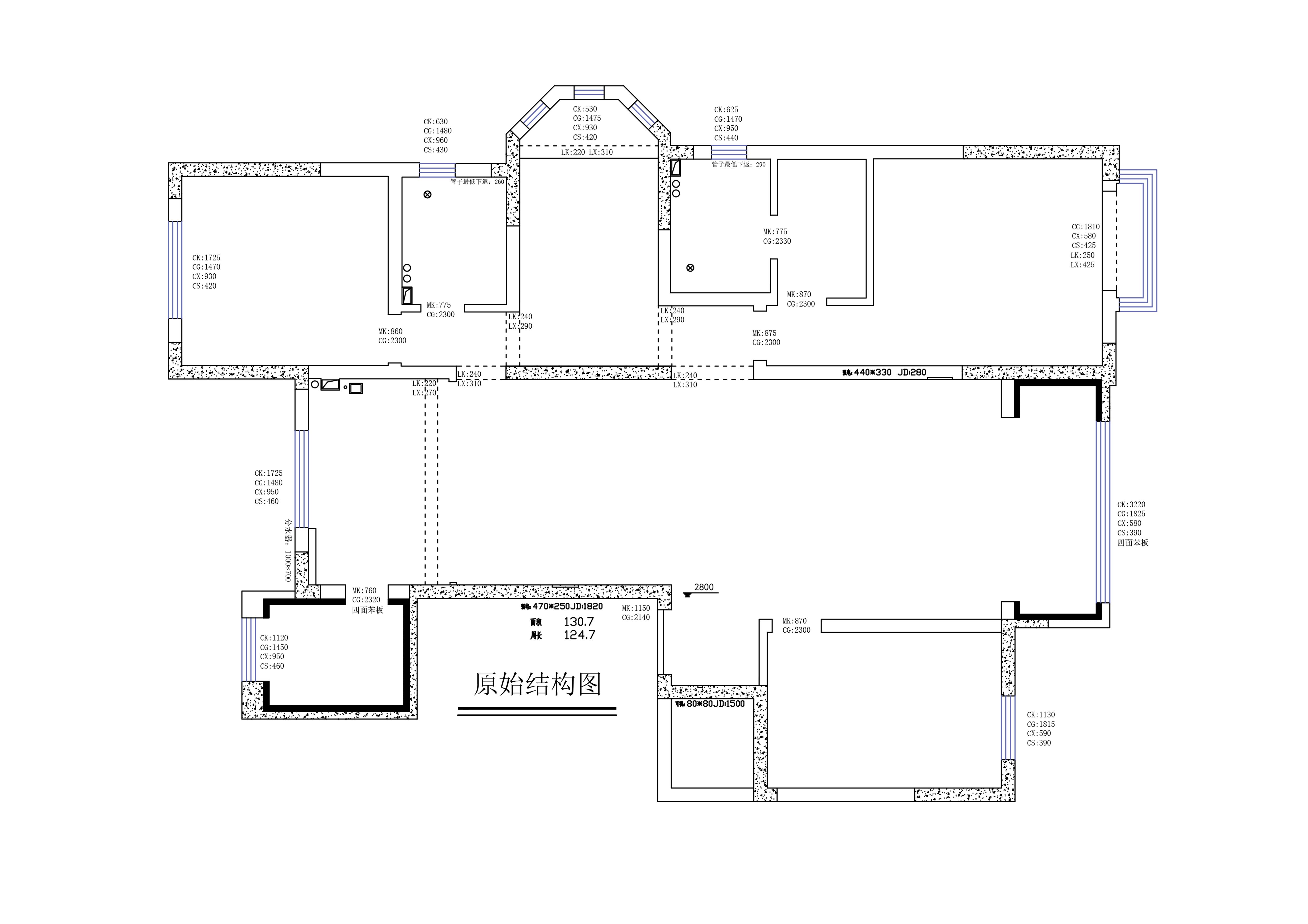
户型图


客厅



餐厅

儿童房

玄关





京公安网备11010502040911